ที่อยู่อาศัยเสื่อมสภาพนี้ สำรวจว่าสถาปัตยกรรมร่วมสมัยที่ยั่งยืนสามารถพักผ่อนได้อย่างสงบสุขกับเพื่อนบ้าน มรดกที่อยู่อาศัยแยกระดับตามภูมิประเทศตามธรรมชาติของไซต์ และนำไปสู่ตามทางเดินอย่างต่อเนื่องจากไม้รีไซเคิล ก่อนที่จะเปิดไปที่ความสูงเหนือโซนที่อยู่อาศัยนี้ ผ่านศาลายังเชื่อมโยงพื้นที่ภายใน และภายนอกผ่านระบบแกนเลื่อนหน้าจอและ louvered.
กลางลานบ้านช่วยให้การระบายอากาศที่มีองศาที่แตกต่างของการเปิดกว้าง และใกล้ชิดอากาศแสง การแก้ปัญหาที่อยู่อาศัยอย่างยั่งยืนประกอบด้วยหน้าต่าง กระจก 2 ชั้น ที่มีก๊าซอาร์กอน การเก็บเกี่ยวน้ำฝนเป็นชุดของถังใต้ดินน้ำสีเทา เพื่อนำกลับมาใช้ การชลประทาน ในขณะที่ไม้รีไซเคิลและสารเคลือบ VOC ต่ำ ถูกนำมาใช้อย่างกว้างขวาง.
การแสดงออกที่ชัดเจนของระบบการรีไซเคิลไม้โครงสร้าง รูปแบบเฟรมที่พอร์ทัลการกลั่นที่จะแสดงทั้งภายในและภายนอก แรงบันดาลใจจากบ้านแบบดั้งเดิมของภูมิภาคสมดุลของวัสดุ รวมทั้งการก่ออิฐและพื้นผิวที่มีน้ำหนักเบาของ weatherboards ไม้ถูกรวมเพื่อตอบสนองการออกแบบที่สร้างขึ้นอย่างประณีตให้ความรู้สึกของความเที่ยงตรงในโครงสร้างและวัสดุ ในที่สุดความสงบสุขในภูมิทัศน์เมือง.
โครงการนี้ได้เข้ารอบคัดเลือกใน the recent Australian Institute of Architects awards รางวัลและได้รับรางวัลชมเชย ที่ได้รับรางวัลการออกแบบไม้ออสเตรเลีย มันก็เลือกล่าสุดให้ the prestigious 2010 Robin Boyd Foundation Open Day: 'Designed For Our Time'
เรียบเรียงข้อมูล @ ฟรีแปลน
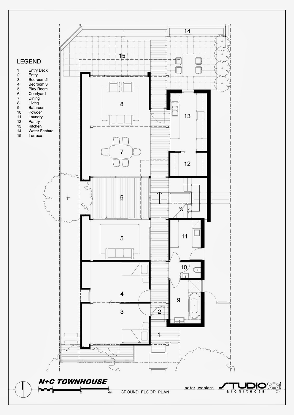
Architects: Studio101 Architects
Location: Geelong, Victoria, Australia
Project area: 256 sqm
Project year: 2009
Photographs: Trevor Mein
มองหาแนวคิดสำหรับบ้านของคุณ และการสำรองข้อมูลในเว็บไซต์ของฉัน Looking for ideas for your home. And data backup in My website.
วันอาทิตย์ที่ 10 พฤศจิกายน พ.ศ. 2556
การออกแบบจากไต้หวัน องค์ประกอบที่กลมกลืนทั้งทันสมัยและคลาสสิก
ในขณะที่บางสว่นของการออกแบบที่ทันสมัย ต้องมีวิวเมืองและพื้นที่ตารางฟุตกว้างขวาง ได้รับข้อความนี้ การออกแบบที่ทันสมัยจากไต้หวันไม่จำเป็นต้องมีอย่างใดอย่างหนึ่ง การใช้พาร์ทิชันที่มีความยืดหยุ่นที่จะแยกพื้นที่ๆแตกต่างกัน โดยไม่ต้องปิดพวกเขา Ganna Design ได้สร้างบ้านที่อบอุ่นที่มีมากมายของห้องพักที่จะระบาย การตกแต่งผสมผสานให้กระจายขนาดใหญ่ ของบุคลิกภาพความคิดสร้างสรรค์โดยไม่ต้องสละพื้นที่อันมีค่า ในขณะที่ชิ้นงานที่เลือกอย่างระมัดระวังเพื่อให้กลมกลืนองค์ประกอบทั้งทันสมัยและคลาสสิก.
ห้องครัวขนาดเล็กแต่มีความจำเป็นทั้งหมดรวมทั้งผิวเรียบสะอาด ที่ทำให้มันเป็นสถานที่ๆน่าดึงดูดใจในการเตรียมอาหาร ติดตั้งไฟเรขาคณิตที่มีความสนุกสนาน.
เฉดสีโดยรวมของบ้านคือ เย็นสบาย แต่แรงกระแทกจากไฟนีออนในห้องน้ำของผู้เข้าพัก ส่งข้อความที่ชัดเจนว่าการออกแบบที่ทันสมัยไม่ได้ใช้ตัวเองอย่างจริงจังเกินไป กระจกนี้เป็นตัวอย่างที่สมบูรณ์แบบ รูปร่างแบบดั้งเดิม และซับซ้อนของมันพบว่าสถานที่ในอพาร์ทเม้นนี้ เฉพาะเมื่อปกคลุมด้วยแล็คเกอร์สีส้มสดใส.
ห้องนอนมีมุมมองที่ชัดเจนของเก้าอี้โยกเมสยัง ยินดีต้อนรับเสมอที่บ้านใด ๆ สมัยใหม่ มุมมองที่ถูกล้อมกรอบด้วยตู้เก็บของสีฟ้าที่ดึงความสนใจจากมุมใด.
แม้ว่าห้องน้ำมาสเตอร์ที่กว้างขวาง นอกเหนือจากภาพของหน้าต่างกว้างมองออกไปเข้าไปในห้องนอนจะช่วยให้ในที่มีแสงและทำให้รู้สึกมีขนาดใหญ่มาก การติดตั้งที่ทันสมัยเพิ่มองค์ประกอบที่สงบเงียบและหรูหรา.
คู่ของวินเทจ repurposed เป็นโต๊ะให้จัดเก็บเพิ่มเติม และความรู้สึกความคิดสร้างสรรค์ พรมพื้นที่แม้ว่าจะมีสีที่เป็นกลาง, นำในองค์ประกอบของธรรมชาติในรูปแบบหินที่เลียนแบบ.
เรียบเรียงข้อมูล @ ฟรีแปลน
ห้องครัวขนาดเล็กแต่มีความจำเป็นทั้งหมดรวมทั้งผิวเรียบสะอาด ที่ทำให้มันเป็นสถานที่ๆน่าดึงดูดใจในการเตรียมอาหาร ติดตั้งไฟเรขาคณิตที่มีความสนุกสนาน.
เฉดสีโดยรวมของบ้านคือ เย็นสบาย แต่แรงกระแทกจากไฟนีออนในห้องน้ำของผู้เข้าพัก ส่งข้อความที่ชัดเจนว่าการออกแบบที่ทันสมัยไม่ได้ใช้ตัวเองอย่างจริงจังเกินไป กระจกนี้เป็นตัวอย่างที่สมบูรณ์แบบ รูปร่างแบบดั้งเดิม และซับซ้อนของมันพบว่าสถานที่ในอพาร์ทเม้นนี้ เฉพาะเมื่อปกคลุมด้วยแล็คเกอร์สีส้มสดใส.
ห้องนอนมีมุมมองที่ชัดเจนของเก้าอี้โยกเมสยัง ยินดีต้อนรับเสมอที่บ้านใด ๆ สมัยใหม่ มุมมองที่ถูกล้อมกรอบด้วยตู้เก็บของสีฟ้าที่ดึงความสนใจจากมุมใด.
แม้ว่าห้องน้ำมาสเตอร์ที่กว้างขวาง นอกเหนือจากภาพของหน้าต่างกว้างมองออกไปเข้าไปในห้องนอนจะช่วยให้ในที่มีแสงและทำให้รู้สึกมีขนาดใหญ่มาก การติดตั้งที่ทันสมัยเพิ่มองค์ประกอบที่สงบเงียบและหรูหรา.
คู่ของวินเทจ repurposed เป็นโต๊ะให้จัดเก็บเพิ่มเติม และความรู้สึกความคิดสร้างสรรค์ พรมพื้นที่แม้ว่าจะมีสีที่เป็นกลาง, นำในองค์ประกอบของธรรมชาติในรูปแบบหินที่เลียนแบบ.
เรียบเรียงข้อมูล @ ฟรีแปลน
สมัครสมาชิก:
ความคิดเห็น (Atom)






























