The FIRST ที่อยู่อาศัยสมัยใหม่ LEED Platinum ใน Southeastern สหรัฐอเมริกา
The RainShine เป็นบ้าน 2 ชั้น 2800 ตารางฟุต 3 ห้องนอน 3 1/2 ห้องน้ำ อยู่ในแอตแลนตา, จอร์เจีย 1/3-acre infill ที่อยู่อาศัยในเขตครอบครัวเดี่ยวรอบเป็นของวินเทจผสม andstyle ตั้งแต่ช่วงปลายทศวรรษ 1920 ถึงปัจจุบันกระท่อมทิวดอร์เพื่อที่จะแสดง war Saltbox ไปฟาร์มปศุสัตว์ ตั้งอยู่ใจกลางเมือง blocksfrom 1 1/2 Decatur, RainShine อยู่ในพื้นที่ใกล้เคียง walkable สะดวกมากในการ greatrestaurants แหล่งชอปปิ้งทางเลือกการขนส่งที่ดีเยี่ยมหลายแหล่งข้อมูลอื่น ๆ ในชุมชน และความหลากหลายที่โดดเด่นของ culturalopportunities.
ที่ตั้งโครงการได้รับการคัดเลือกมาโดยเฉพาะ เพื่อให้เจ้าของเพื่อติดตามไลฟ์สไตล์ที่ต้องการได้จากการเดินขี่จักรยาน และการใช้ระบบขนส่งมวลชนในชีวิตประจำวันของพวกเขา สำหรับพวกเขาลดการพึ่งพาของพวกเขาใน personalautomobiles จะส่งผลให้น้อยลง การเดินทางรถจึงนำไปสู่มลพิษน้อยกว่าความแออัดของการใช้น้อยกว่าของ importedoil และมีสุขภาพดีวิถีการดำเนินชีวิตมากขึ้น ชุมชนที่มุ่งเน้น RainShine แต่ไม่ครอบครองไซต์ 1/3-acre ที่ท้าทาย.
ถึงแม้ว่าสถานที่ให้บริการอยู่ภายในสายตาของการหาร subcontinental พื้นที่ buildable ถูก จำกัด โดย Aman ทำที่ราบน้ำท่วมถึง (ที่เกิดจากการออกแบบท่อระบายน้ำเทศบาลไม่ดี และแอสฟัลลานจอดรถขนาดใหญ่ใกล้เคียงที่ Church ที่มีการควบคุมการไหลของน้ําไม่เพียงพอ), ความต้องการบัฟเฟอร์กระแส และความสะดวกท่อระบายน้ำ transversingไซต์ยังรวมไปถึงตามปกติกำหนดเขตที่อยู่อาศัย setbacks ปัจจัยเหล่านี้ส่งผลในรูปสี่เหลี่ยมคางหมู areaavailable 3,778 ตารางฟุต สำหรับการสร้าง Porches บ้านและดาดฟ้า จึงกำหนดให้แน่นภายในเหล่านี้ มีข้อ จำกัด แต่ takeadvantage ตามทิศทางที่จะเปิดพื้นที่ได้ afforded ผ่านสบายและ buffer.
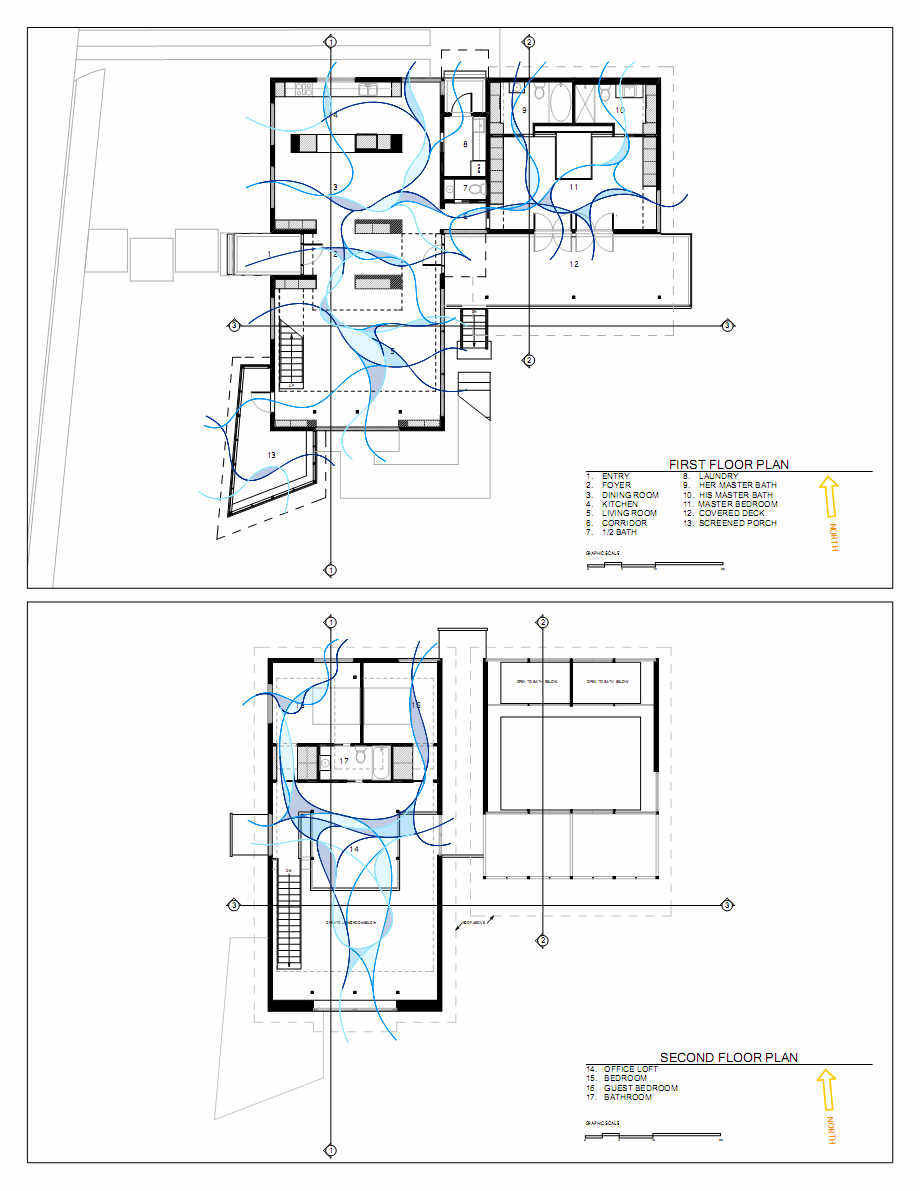
RainShine เป็นชื่อของลักษณะการออกแบบที่สำคัญ ห้องนอน ห้องนั่งเล่น, ห้องรับประทานอาหารห้องครัว และผู้เข้าพักเป็น shelteredby หลังคาผีเสื้อโครงสร้างที่มีเหล็กคานทอดสัมผัส 1 1/2 "พื้นระเบียงเข้าลิ้นและร่องไม้ ลอยอยู่เหนือ Theroof clerestories อย่างต่อเนื่องทำให้ป้องกันน้ำท่วม แสงเพื่อการตกแต่งภายใน ชั้นวางแสงรอบตีกลับ theclerestory Sills และแสงธรรมชาติกระจายอยู่ทั่วภายใน.
หลังคาผีเสื้อถูกออกแบบมาเพื่อ capturerainfall (Rain) สำหรับระบบ rainharvest อยู่ในชั้นใต้ดินและเป็นเชิงเพื่อเพิ่ม exposurefor ใต้หลังคาติดตั้งระบบไฟฟ้าโซลาร์เซลล์ (Shine) การออกแบบผีเสื้อกับจั่วหัวกลับของ simplifiesrainwater คอลเลกชัน, กำจัดท่อที่กว้างขวางและระบบรางที่ปวดหัวการบำรุงรักษาที่เกี่ยวข้อง.
การครอบครองเป็นจำนวนมากที่ด้านหน้าของห้องโถง เป็นทางเข้าและห้องนั่งเล่น สองชั้นมองข้ามโดยการศึกษาและสองห้องนอนของผู้เข้าพัก ห้องรับประทานอาหาร ห้องครัว และการไหลในลักษณะที่เปิดไปยังห้องนั่งเล่น ชุดต้นแบบระดับเดียวขยายไปถึงด้านหลังภาคส่วนตัวมากขึ้น ของจำนวนมากที่ปกคลุมใต้ หันหน้าไปทางดาดฟ้าที่มีพื้นที่ใช้สอย คานที่ระเบียง screened ปิดห้องนั่งถนนและใช้ร่วมกับห้องรับแขกให้บริการ เพื่อกลั่นกรองส่วนด้านหลังเป็นส่วนตัวของไซต์ ตั้งแต่ที่พักแรงจูงใจที่จะไม่ majorconsideration ในชีวิตของเจ้าของ.
เป้าหมายการพัฒนาอย่างยั่งยืนเป็นสิ่งสำคัญยิ่ง และประสบความสำเร็จผ่านระบบที่มีประสิทธิภาพพลังงานเช่น การระบายอากาศตามธรรมชาติ, ปั๊มความร้อนใต้ดิน, LED แสงและการระบายอากาศกู้คืนพลังงาน คุณสมบัติเพิ่มเติม: แฝงคุณสมบัติการออกแบบแสงอาทิตย์ และอุปกรณ์เครื่องใช้ไฟฟ้าที่มีประสิทธิภาพสูงที่ใช้อย่างกว้างขวางของวัสดุกับสิ่งแวดล้อมที่ดีกว่า / สูงความทนทาน / บรรจง / รีไซเคิล / reclaimed, ไม่มีสีและเคลือบหลุมร่องฟัน VOC, ชลประทานไม่มีการจัดสวนชนิดแล้ง tolerantnative และ (ผ่านจดทะเบียนของสวนฝน และโครงการการโพสต์ระบบ rainharvest ) ใช้ปิดเทียบเท่ากับสถานะแบบป่าไม้.











Architects:
Robert M. Cain
Location:
Decatur, Georgia, USA
Area:
2,800 sq. ft.
Date:
2008
Photographs:
Courtesy of Robert M. Cain