Andrew Myers, ประติมากรใน Laguna Beach, California อาจเป็นศิลปินเพียงคนเดียวบนโลกที่ใช้ในการสร้างสกรูภาพสามมิติ
"I liked ความคิดของการใช้สกรูเพราะด้านอุตสาหกรรมและความรุนแรงที่มาพร้อมกับการใช้มันเป็นวัสดุ" ไมเออร์บอก AOL News.
เรียบเรียงข้อมูล @ ฟรีแปลน
Photos courtesy of Andrew Myers
มองหาแนวคิดสำหรับบ้านของคุณ และการสำรองข้อมูลในเว็บไซต์ของฉัน Looking for ideas for your home. And data backup in My website.
วันเสาร์ที่ 19 มกราคม พ.ศ. 2556
บ้าน 2 ชั้น 4 ห้องนอน 4 ห้องน้ำ การรักษางบประมาณก่อสร้างต่ำสุด
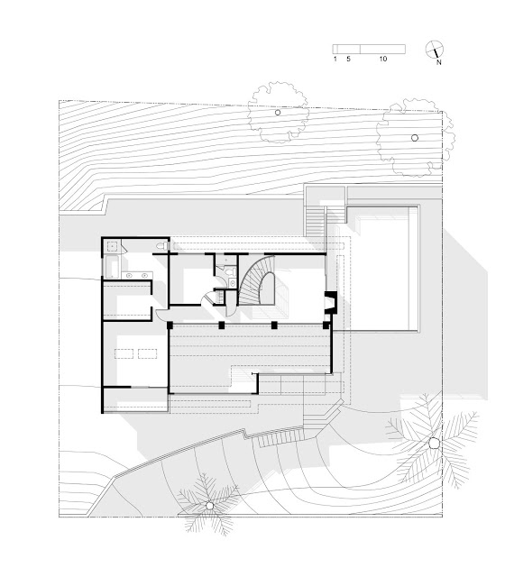
บ้าน Bojanic ได้รับการออกแบบโดยสถาปนิกสตูดิ Martin Fenlon Architecture. ครอบครัวนี้ 2,500 ตารางฟุต มี 4 ห้องนอน 4 ห้องน้ำ และตั้งอยู่ที่ด้านบนของภูเขาจาก Sherman Oaks, ตำบลในพื้นที่ San Fernando Valley ของเมือง Los Angeles, California.
The Bojanic House by Martin Fenlon Architecture:
"สิ่งที่เริ่มออกเป็นปรับปรุงเล็ก ๆ น้อย ๆกับบ้านพักตากอากาศพอประมาณในช่วงการพัฒนาของการก่อสร้างเข้ามาใหม่ 2,500 SF บ้านที่มีรากฐานที่มีอยู่และปล่อยเป็นองค์ประกอบเดิมเพียง Bojanics ทำหน้าที่เป็นเจ้าของผู้สร้าง, การรักษาค่าก่อสร้างต่ำสุดเปลือย
ผลลัพธ์ที่ได้คือความพยายามร่วมกันที่ไม่ซ้ำกัน; หนึ่งที่ออกแบบงานออกในแต่ละวันต่อวันในระหว่างการก่อสร้างในลักษณะที่เป้นการปรับตัว
ไซต์ที่เป็นที่ด้านบนของเนินเขาของ Sherman Oaks เพียงภายใต้มัลฮอลแลนด์เนินและ affords มุมมองที่งดงามของ San Fernando Valley Bojanics ต้องการบ้านที่ไม่เพียง แต่จะใช้ประโยชน์จากมุมมอง แต่ยังรักษาการบทบาทดั้งเดิมของบ้านเป็นส่วนตัวกำบังป้องกัน นี้ขอนำเสนอที่ขัดแย้งค่อนข้างท้าทาย
การตอบสนองเป็นที่เปิดโล่งของพื้นที่เชิงต่อมุมมองที่ตั้งอยู่ภายในมวลหนักเสาหินซึ่งมีความจำเป็นและปิดวนเวียนอยู่ protectively ข้างต้น การเจรจาต่อรองด้านตรงข้ามเหล่านี้เป็นส่วนใหญ่ที่เห็นได้ชัดในทางเข้า; ผนังทึบที่มีประตูชั่งน้ำหนักหลายร้อยปอนด์กลายเป็นจุดของรายการซึ่งตั้งอยู่ภายในและเคาน์เตอร์, ผนังกระจกเปิด ".
เรียบเรียงข้อมูล @ ฟรีแปลน
Photos courtesy of Martin Fenlon Architecture
Source: Contemporist
The Bojanic House by Martin Fenlon Architecture:
"สิ่งที่เริ่มออกเป็นปรับปรุงเล็ก ๆ น้อย ๆกับบ้านพักตากอากาศพอประมาณในช่วงการพัฒนาของการก่อสร้างเข้ามาใหม่ 2,500 SF บ้านที่มีรากฐานที่มีอยู่และปล่อยเป็นองค์ประกอบเดิมเพียง Bojanics ทำหน้าที่เป็นเจ้าของผู้สร้าง, การรักษาค่าก่อสร้างต่ำสุดเปลือย
ผลลัพธ์ที่ได้คือความพยายามร่วมกันที่ไม่ซ้ำกัน; หนึ่งที่ออกแบบงานออกในแต่ละวันต่อวันในระหว่างการก่อสร้างในลักษณะที่เป้นการปรับตัว
ไซต์ที่เป็นที่ด้านบนของเนินเขาของ Sherman Oaks เพียงภายใต้มัลฮอลแลนด์เนินและ affords มุมมองที่งดงามของ San Fernando Valley Bojanics ต้องการบ้านที่ไม่เพียง แต่จะใช้ประโยชน์จากมุมมอง แต่ยังรักษาการบทบาทดั้งเดิมของบ้านเป็นส่วนตัวกำบังป้องกัน นี้ขอนำเสนอที่ขัดแย้งค่อนข้างท้าทาย
การตอบสนองเป็นที่เปิดโล่งของพื้นที่เชิงต่อมุมมองที่ตั้งอยู่ภายในมวลหนักเสาหินซึ่งมีความจำเป็นและปิดวนเวียนอยู่ protectively ข้างต้น การเจรจาต่อรองด้านตรงข้ามเหล่านี้เป็นส่วนใหญ่ที่เห็นได้ชัดในทางเข้า; ผนังทึบที่มีประตูชั่งน้ำหนักหลายร้อยปอนด์กลายเป็นจุดของรายการซึ่งตั้งอยู่ภายในและเคาน์เตอร์, ผนังกระจกเปิด ".
เรียบเรียงข้อมูล @ ฟรีแปลน
Photos courtesy of Martin Fenlon Architecture
Source: Contemporist
LUX* Maldives Resort ความเข้าใจจริงในชีวิตในเกาะที่สวยงาม
ตั้งอยู่ในความเป็นส่วนตัวของเกาะ Dhidhoofinolhu ใน Ari Atoll ใต้, LUX* Maldives Resort ให้บริการความเข้าใจจริงในชีวิตในเกาะที่สวยงาม
ที่ระดับ 1.25กิโลเมตรยาวและ 1300 ฟุตกว้างเกาะที่มีขนาดใหญ่พอที่จะสำรวจเมื่อคุณจินตนาการหยุดพักจากหาดทรายปะการังละเอียด
โดดเด่นด้วยสปาศูนย์ออกกำลังกายและสระว่ายน้ำกลางแจ้ง, 7 ร้านอาหารและ 6 บาร์ LUX * มัลดีฟส์รีสอร์ทเสนอให้แขกที่เข้าพัก 193 ห้องและห้องสวีตั้งแต่วิลล่าตั้งอยู่บนริมชายหาดที่วิลล่าน้ำที่สวยงาม, ยืนอยู่บนไม้ค้ำถ่อเหนือทะเลสาบของ น้ำทะเลใส.
เรียบเรียงข้อมูล @ ฟรีแปลน
Photos courtesy of LUX* Resorts
ที่ระดับ 1.25กิโลเมตรยาวและ 1300 ฟุตกว้างเกาะที่มีขนาดใหญ่พอที่จะสำรวจเมื่อคุณจินตนาการหยุดพักจากหาดทรายปะการังละเอียด
โดดเด่นด้วยสปาศูนย์ออกกำลังกายและสระว่ายน้ำกลางแจ้ง, 7 ร้านอาหารและ 6 บาร์ LUX * มัลดีฟส์รีสอร์ทเสนอให้แขกที่เข้าพัก 193 ห้องและห้องสวีตั้งแต่วิลล่าตั้งอยู่บนริมชายหาดที่วิลล่าน้ำที่สวยงาม, ยืนอยู่บนไม้ค้ำถ่อเหนือทะเลสาบของ น้ำทะเลใส.
เรียบเรียงข้อมูล @ ฟรีแปลน
Photos courtesy of LUX* Resorts
สมัครสมาชิก:
ความคิดเห็น (Atom)

































































