กลายเป็นความสนิทสนมระหว่างความรู้สึกของพื้นที่ ให้ความรู้สึกคุ้นเคยชีวิตประจำวันของพวกเขา และขนาดที่เหมาะสมสำหรับการเข้าห้องพักสำหรับเด็ก, ห้องนอนและอื่น ๆ แม้ว่าขนาดที่เหมาะสมนี้ อาจแตกต่างกันไปตามแต่ละช่วงที่เหมาะสมของมิติเหล่านี้ มักจะมีอยู่แล้วในใจของเราขนาด "มาตรฐาน" สำหรับโครงการใดจึงมีการกำหนดแล้ว เกี่ยวกับความรู้สึกของ "สิทธิ" แต่เรามีวิธีการทำปรับมุมมองที่ยึดที่มั่นนี้.
ตัวอย่างเช่น ค่อยๆเพิ่มขึ้นในสิ่งที่เป็นความคิดทั่วไปของการเป็นขนาดมาตรฐาน สำหรับการเข้าจะให้สิ่งที่เรียกว่า doma (ชั้นดินญี่ปุ่นและเกณฑ์) ใช้ใหม่สำหรับส่วนหนึ่งของบ้านนี้จะเพิ่มขึ้นอย่างรวดเร็วด้วยการเชื่อมโยงระหว่าง doma และห้องนั่งเล่น หรือใช้สำหรับการเข้าที่นอกเหนือไปจากวัตถุประสงค์เดิม ในทางตรงกันข้ามถ้าขนาดของทางเข้านี้จะลดลงมันอาจจะหายไปทั้งหมด และก่อให้เกิดการกำหนดค่าที่แตกต่างกัน ลูกค้าของเราสำหรับโครงการนี้มีความสนใจในบ้านแบ่งระดับ และต้องการบ้านที่ครอบครัวจะสามารถไหลเวียนผ่านพื้นที่ในสามมิติ.
เรียบเรียงข้อมูล @ ฟรีแปลน
Architects: Fujiwarramuro Architects
Location: Ishikawa, Japan
Project Architects: Shintaro Fujiwara, Yoshio Muro
Area: 110.14 sqm
Photographs: Toshiyuki Yano
มองหาแนวคิดสำหรับบ้านของคุณ และการสำรองข้อมูลในเว็บไซต์ของฉัน Looking for ideas for your home. And data backup in My website.
วันอาทิตย์ที่ 22 ธันวาคม พ.ศ. 2556
การออกแบบที่เรียบง่ายและง่ายในบรรยากาศ Bistro
คุณเคยได้ยินคำของร้านอาหารหรือไม่ ที่จริงร้านอาหารเหมือนร้านกาแฟ มีเพียงเล็กน้อยที่แตกต่างกันระหว่างพวกเขา ร้านอาหารเป็นสถานที่ๆให้บริการอาหารที่เรียบง่ายกับราคาที่ง่ายและราคาถูก ร้านอาหารสามารถพบได้ทุกที่ Bistro จะง่ายกว่าร้านกาแฟและร้านอาหาร Bistro ยังสามารถเป็นสถานที่ทางเลือกที่คุณต้องการที่จะผ่อนคลาย ในขณะที่สำนักงานจะแบ่งเวลา ด้วยสไตล์ที่เรียบง่ายและการออกแบบให้เป็นร้านอาหารเป็นสถานที่ๆมีแสงแตกต่างกันนิดหน่อย และบรรยากาศ Bistro ยังสามารถให้แตกต่างกันนิดหน่อยเมื่อคุณกำลังรับประทานอาหาร หากคุณกำลังคิดของการมีร้านอาหารที่ผมจะให้คำแนะนำบางอย่างสำหรับแนวคิดการออกแบบร้านอาหารของคุณ.
หนึ่งในแนวคิดการออกแบบร้านอาหารเป็นร้านอาหารคลาสสิก คุณสามารถใช้สไตล์คลาสสิกที่ร้านอาหารของคุณด้วยการใช้สิ่งบางอย่างที่เหมือนโคมไฟโบราณ คุณสามารถใช้โคมไฟที่สวยงามแนวคิดการออกแบบร้านอาหารของคุณ ชนิดของหลอดไฟจากยุคโบราณสามารถเพิ่มคุณค่าทางศิลปะในแนวคิดการออกแบบร้านอาหารของคุณ และยังสามารถเพิ่มบรรยากาศที่เป็นเอกลักษณ์ในร้านอาหารของคุณ แม้ว่าจะใช้โคมไฟเป็นแนวคิดการออกแบบร้านอาหาร, การแสดงผลนี้จะยังคงอยู่แสงที่มองเห็นและน่าสนใจ นอกจากนี้คุณยังสามารถเพิ่มภาพวาดของอาหารบางอย่างในแนวคิดการออกแบบร้านอาหารของคุณ เหมือนอาหารที่เรียบง่ายของไอศครีมหรือแซนวิช การออกแบบที่คลาสสิกมากเหมาะสำหรับคุณที่ต้องการความรู้สึกบรรยากาศของเวลาที่ผ่านมา แต่ยังคงรู้สึกเบาและเรียบง่าย.
ต่อไปสำหรับแนวคิดการออกแบบที่ทันสมัยร้านอาหาร คุณสามารถทำให้แนวคิดสีน้ำตาลและเรียบง่าย จะใช้ความคิดในการออกแบบร้านอาหารที่ทันสมัยที่คุณต้องเลือกเฟอร์นิเจอร์ที่เรียบง่ายและไม่ซ้ำกัน คุณสามารถเลือกเฟอร์นิเจอร์ที่ทำจากไม้ที่มีสีครีมสีน้ำตาล รูปทรงที่ง่ายและไม่ซ้ำกันในร้านอาหารของคุณสามารถเพิ่มแตกต่างกันนิดหน่อยที่ทันสมัย สีน้ำตาลยังมีผลที่ดีสำหรับแนวคิดการออกแบบร้านอาหารที่ทันสมัยของคุณ เพราะมันสามารถเพิ่มบรรยากาศแสงและความอบอุ่นในแนวคิดการออกแบบร้านอาหารของคุณ ดังนั้นเฟอร์นิเจอร์ยังเป็นสิ่งสำคัญมากที่จะแนวคิดการออกแบบร้านอาหารของคุณ.
สุดท้ายที่คุณสามารถใช้รูปแบบร่วมสมัยสไตล์ร่วมสมัยของแนวคิดการออกแบบร้านอาหารมีความเหมาะสมมากสำหรับคุณที่ต้องการความรู้สึกบรรยากาศที่น่ากลัวเมื่อคุณกำลังรับประทานอาหาร จากนั้นเพื่อเพิ่มสำเนียงร่วมสมัยคุณสามารถใช้สีดำและสีขาวเพื่อที่จะสามารถเพิ่มสไตล์ร่วมสมัยและการแสดงผลแสง ด้วยรูปทรงที่มีเอกลักษณ์จากสไตล์ร่วมสมัยที่จะสามารถดึงดูดความสนใจของผู้บริโภคที่จะมาร้านอาหารของคุณ เพื่อขอการออกแบบร้านอาหารที่มีรูปแบบพิเศษและการออกแบบ.
เรียบเรียงข้อมูล @ ฟรีแปลน
หนึ่งในแนวคิดการออกแบบร้านอาหารเป็นร้านอาหารคลาสสิก คุณสามารถใช้สไตล์คลาสสิกที่ร้านอาหารของคุณด้วยการใช้สิ่งบางอย่างที่เหมือนโคมไฟโบราณ คุณสามารถใช้โคมไฟที่สวยงามแนวคิดการออกแบบร้านอาหารของคุณ ชนิดของหลอดไฟจากยุคโบราณสามารถเพิ่มคุณค่าทางศิลปะในแนวคิดการออกแบบร้านอาหารของคุณ และยังสามารถเพิ่มบรรยากาศที่เป็นเอกลักษณ์ในร้านอาหารของคุณ แม้ว่าจะใช้โคมไฟเป็นแนวคิดการออกแบบร้านอาหาร, การแสดงผลนี้จะยังคงอยู่แสงที่มองเห็นและน่าสนใจ นอกจากนี้คุณยังสามารถเพิ่มภาพวาดของอาหารบางอย่างในแนวคิดการออกแบบร้านอาหารของคุณ เหมือนอาหารที่เรียบง่ายของไอศครีมหรือแซนวิช การออกแบบที่คลาสสิกมากเหมาะสำหรับคุณที่ต้องการความรู้สึกบรรยากาศของเวลาที่ผ่านมา แต่ยังคงรู้สึกเบาและเรียบง่าย.
ต่อไปสำหรับแนวคิดการออกแบบที่ทันสมัยร้านอาหาร คุณสามารถทำให้แนวคิดสีน้ำตาลและเรียบง่าย จะใช้ความคิดในการออกแบบร้านอาหารที่ทันสมัยที่คุณต้องเลือกเฟอร์นิเจอร์ที่เรียบง่ายและไม่ซ้ำกัน คุณสามารถเลือกเฟอร์นิเจอร์ที่ทำจากไม้ที่มีสีครีมสีน้ำตาล รูปทรงที่ง่ายและไม่ซ้ำกันในร้านอาหารของคุณสามารถเพิ่มแตกต่างกันนิดหน่อยที่ทันสมัย สีน้ำตาลยังมีผลที่ดีสำหรับแนวคิดการออกแบบร้านอาหารที่ทันสมัยของคุณ เพราะมันสามารถเพิ่มบรรยากาศแสงและความอบอุ่นในแนวคิดการออกแบบร้านอาหารของคุณ ดังนั้นเฟอร์นิเจอร์ยังเป็นสิ่งสำคัญมากที่จะแนวคิดการออกแบบร้านอาหารของคุณ.
สุดท้ายที่คุณสามารถใช้รูปแบบร่วมสมัยสไตล์ร่วมสมัยของแนวคิดการออกแบบร้านอาหารมีความเหมาะสมมากสำหรับคุณที่ต้องการความรู้สึกบรรยากาศที่น่ากลัวเมื่อคุณกำลังรับประทานอาหาร จากนั้นเพื่อเพิ่มสำเนียงร่วมสมัยคุณสามารถใช้สีดำและสีขาวเพื่อที่จะสามารถเพิ่มสไตล์ร่วมสมัยและการแสดงผลแสง ด้วยรูปทรงที่มีเอกลักษณ์จากสไตล์ร่วมสมัยที่จะสามารถดึงดูดความสนใจของผู้บริโภคที่จะมาร้านอาหารของคุณ เพื่อขอการออกแบบร้านอาหารที่มีรูปแบบพิเศษและการออกแบบ.
เรียบเรียงข้อมูล @ ฟรีแปลน
5 ไอเดียการตกแต่งด้วยขาตั้งจักรเย็บผ้าเก่า
คุณจำขาตั้งจักรเย็บผ้าที่ถูกนำมาใช้กับเครื่องวินเทจ? นี่คือความคิดบางอย่างสำหรับคุณโดยที่คุณสามารถปรับเปลี่ยนกับพื้นที่ๆคุณมี:
เรียบเรียงข้อมูล @ ฟรีแปลน
Image Source: curbly
Image Sources: designsponge , conantmetalandlight
Image Sources: livinginblog , oldtimepickers
Image Source: conantmetalandlight
Image Source: prophetbrosantiques
เรียบเรียงข้อมูล @ ฟรีแปลน
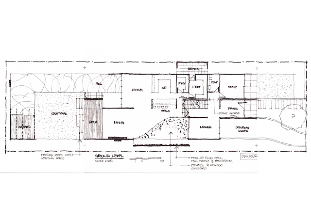
Box House รูปแบบออแกนิตเพื่อให้ได้แสงสว่างธรรมชาติที่ดีกว่า
โครงการที่ตั้งอยู่หนึ่งในภูมิภาคที่ขอมากที่สุด อสังหาริมทรัพย์ที่มีคุณสมบัติพิเศษที่รู้จักกันเป็นรูปสามเหลี่ยมสีทองของ Strathfield, NSW ออสเตรเลีย ชานเมืองส่วนใหญ่มีบังกะโลก่อนสงครามและบ้านเอื้อต่อการ streetscapes อนุรักษ์นิยม เนื่องจากประโยชน์ของที่อยู่อาศัยที่มีอยู่ในการวางแผนที่เกี่ยวข้องกับการนอกรอบ การบำรุงรักษา และค่าใช้จ่ายของลูกค้า ได้ตัดสินใจที่จะเริ่มต้นอีกครั้งสร้างใหม่โดยสมบูรณ์.
จุดเริ่มต้นของโครงการนี้จะต้องผ่านการวิเคราะห์ที่ซับซ้อนของสภาพแวดล้อม ที่เริ่มต้นด้วยสภาพแวดล้อมที่ได้รับผลกระทบโดยตรงจากการอนุรักษ์ระเบียบผังเมือง การวิเคราะห์แยกออกมาควบคุม การวางแผนในเชิงบวกนำไปสู่การได้ทันทีโดยรอบ ซึ่งกำหนดรูปร่างสุดท้ายของอาคาร เปลือกอาคารและองค์ประกอบของ "บ้านกล่อง" ประกอบด้วยชุดของกล่องประสานในลักษณะการจัด ด้วยการใส่องค์ประกอบออแกนิตในรูปแบบของลานไม้ไผ่ไปยังศูนย์ของที่อยู่อาศัย ลานนี้ทำหน้าที่เป็นรอยบากที่จะวางแผนตรงของที่อยู่อาศัย เพื่อให้การปล่อยแสงไฟธรรมชาติ และทำหน้าที่เป็นส่วนขยายไปยังพื้นที่กลางแจ้ง.
ลูกค้าที่ยังเป็นวิศวกรโครงสร้างมีความสามัคคีในการทำงานที่ดีกับสถาปนิก ที่มีส่วนต่อความสำเร็จของการสร้างขึ้นโดยการให้บริการโซลูชั่นโครงสร้างที่ไม่เป็นทาง คอนกรีตและหลังคา ผนังกำแพงได้ถูกสร้างด้วยเทของคอนกรีต เพื่อให้แน่ใจว่าไม่มีข้อต่อการก่อสร้างที่มองเห็นได้ เพื่อให้บรรลุเสร็จภายนอกอย่างราบรื่น ภายในมีดอกยางบันไดด้วยแผ่นเหล็กเชื่อมเสร็จ อบอุ่นแบบอเมริกัน White Oak ซึ่งดูเหมือนว่าเหมาะสมกับกำแพงหินทราย.
จากถนนที่อยู่อาศัยถูกออกแบบมาให้มีเหตุผลที่ดี ที่จะได้ทันทีล้อมรอบด้วยกำแพงโค้งคล่องตัวมาจากด้านหน้าแนวนอน หินทรายหุ้มที่หนักกว่าในระดับพื้นดิน ด้านนอกมีการแทรกขององค์ประกอบไม้โทนสีเหมือนดินของที่อยู่อาศัยในทางตรงกันข้าม และหุ้มสังกะสีให้องค์ประกอบที่สดใสและเป็นเอกลักษณ์ ซึ่งใหม่ที่สร้างขึ้นและเว้นวรรค streetscape ทั่วไปอนุรักษ์ไว้เป็นอย่างอื่น.
เรียบเรียงข้อมูล @ ฟรีแปลน
Architects: Zouk Architects
Location: Strathfield NSW, Australia
Area: 700 sqm
Year: 2013
Photographs: 3.2.1 Photography
จุดเริ่มต้นของโครงการนี้จะต้องผ่านการวิเคราะห์ที่ซับซ้อนของสภาพแวดล้อม ที่เริ่มต้นด้วยสภาพแวดล้อมที่ได้รับผลกระทบโดยตรงจากการอนุรักษ์ระเบียบผังเมือง การวิเคราะห์แยกออกมาควบคุม การวางแผนในเชิงบวกนำไปสู่การได้ทันทีโดยรอบ ซึ่งกำหนดรูปร่างสุดท้ายของอาคาร เปลือกอาคารและองค์ประกอบของ "บ้านกล่อง" ประกอบด้วยชุดของกล่องประสานในลักษณะการจัด ด้วยการใส่องค์ประกอบออแกนิตในรูปแบบของลานไม้ไผ่ไปยังศูนย์ของที่อยู่อาศัย ลานนี้ทำหน้าที่เป็นรอยบากที่จะวางแผนตรงของที่อยู่อาศัย เพื่อให้การปล่อยแสงไฟธรรมชาติ และทำหน้าที่เป็นส่วนขยายไปยังพื้นที่กลางแจ้ง.
ลูกค้าที่ยังเป็นวิศวกรโครงสร้างมีความสามัคคีในการทำงานที่ดีกับสถาปนิก ที่มีส่วนต่อความสำเร็จของการสร้างขึ้นโดยการให้บริการโซลูชั่นโครงสร้างที่ไม่เป็นทาง คอนกรีตและหลังคา ผนังกำแพงได้ถูกสร้างด้วยเทของคอนกรีต เพื่อให้แน่ใจว่าไม่มีข้อต่อการก่อสร้างที่มองเห็นได้ เพื่อให้บรรลุเสร็จภายนอกอย่างราบรื่น ภายในมีดอกยางบันไดด้วยแผ่นเหล็กเชื่อมเสร็จ อบอุ่นแบบอเมริกัน White Oak ซึ่งดูเหมือนว่าเหมาะสมกับกำแพงหินทราย.
จากถนนที่อยู่อาศัยถูกออกแบบมาให้มีเหตุผลที่ดี ที่จะได้ทันทีล้อมรอบด้วยกำแพงโค้งคล่องตัวมาจากด้านหน้าแนวนอน หินทรายหุ้มที่หนักกว่าในระดับพื้นดิน ด้านนอกมีการแทรกขององค์ประกอบไม้โทนสีเหมือนดินของที่อยู่อาศัยในทางตรงกันข้าม และหุ้มสังกะสีให้องค์ประกอบที่สดใสและเป็นเอกลักษณ์ ซึ่งใหม่ที่สร้างขึ้นและเว้นวรรค streetscape ทั่วไปอนุรักษ์ไว้เป็นอย่างอื่น.
เรียบเรียงข้อมูล @ ฟรีแปลน
Architects: Zouk Architects
Location: Strathfield NSW, Australia
Area: 700 sqm
Year: 2013
Photographs: 3.2.1 Photography
สมัครสมาชิก:
ความคิดเห็น (Atom)



























































