บ้านร่วมสมัย 2 ชั้น ออกแบบโดย Beaton Design ในปี 2006 สามปีที่เดินเข้าออกในการก่อสร้างทั้งหมดนี้สร้างขึ้นเองและก็แสดงให้เห็นในแง่ของรายละเอียดไร้ที่ติทุกประการ.
ตั้งอยู่ใน Cherry Creek North, ซึ่งเป็นหนึ่งในย่านที่มีชื่อเสียงที่สุดของเมืองเดนเวอร์ รัฐโคโลราโดนี้ 7,066 ตารางฟุต บ้าน 4 ห้องนอน, 5 ห้องน้ำ ถูกออกแบบมาสำหรับการใช้ชีวิตประจำวันที่ผ่อนคลายในร่มกลางแจ้งที่สนุกสนานที่เงียบสงบและสดใส.
ผลงานชิ้นเอกที่ทันสมัยนี้มีเพดานสูง พื้นกระเบื้อง, ห้องไวน์ 12-100 ขวด ควบคุมสภาพอากาศ, โรงภาพยนตร์ดิจิตอล บ้านน้ำเค็มร้อนรอบสระว่ายน้ำในร่มและอ่างอาบน้ำร้อน แปลนพื้นชั้นอเนกประสงค์ให้พื้นที่ที่เหมาะสำหรับในร่ม และการใช้ชีวิตกลางแจ้งและสนุกสนาน.
เรียบเรียงข้อมูล @ ฟรีแปลน
Photos courtesy of Beaton Design and style
มองหาแนวคิดสำหรับบ้านของคุณ และการสำรองข้อมูลในเว็บไซต์ของฉัน Looking for ideas for your home. And data backup in My website.
วันเสาร์ที่ 15 พฤศจิกายน พ.ศ. 2557
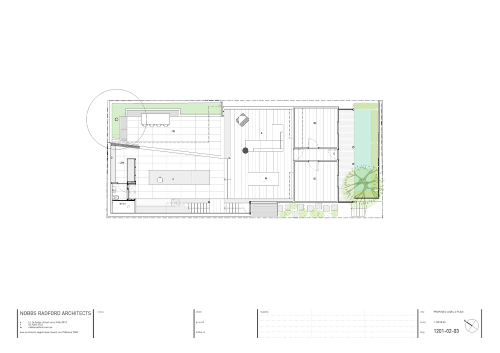
การปรับปรุงบ้าน 2 ชั้นด้วยความเรียบง่ายและเพิ่มประสบการณ์กลางแจ้ง
บ้านหลังนี้ตั้งอยู่ในย่านชานเมืองซิดนีย์ชั้นในของ Birchgrove อยู่ใกล้กับท่าเรือ ส่วนเดิมของบ้านเป็นกระท่อมไม้กันสาดง่ายเหตุผลคือ การปรับปรุงบ้านด้วยความเรียบง่ายและเพิ่มประสบการณ์กลางแจ้งบนไซต์ที่จำกัดกับเพื่อนบ้านในบริเวณใกล้เคียงมาก.
เรียบเรียงข้อมูล @ ฟรีแปลน
Architects: Nobbs Radford Architects
Location: Sydney NSW, Australia
Area: 221.0 sqm
Year: 2014
Photographs: Murray Fredericks
Builder: Artechne
Structural Engineer: Partridge
เรียบเรียงข้อมูล @ ฟรีแปลน
Architects: Nobbs Radford Architects
Location: Sydney NSW, Australia
Area: 221.0 sqm
Year: 2014
Photographs: Murray Fredericks
Builder: Artechne
Structural Engineer: Partridge
สมัครสมาชิก:
ความคิดเห็น (Atom)

















































