คอลเลคชั่น PLUST New Plastic Generation
ความคิด, โครงการ, ออกแบบ, เทคนิค, วัสดุทุกอย่างในคอลเลกชั่น PLUST เป็นการสร้างการออกแบบใหม่และรูปแบบที่ทันสมัยของที่อยู่อาศัย
คอลเลกชัน PLUST ก่อตั้งขึ้นในปี 2007 เป็นยูโร 3 แบรนด์พลาสท์ Design Spa, ผู้ผลิตชั้นนำของกระถางแบบดั้งเดิมกระจายไปทั่วโลกมีการผลิตได้รับการรับรองและทั้งหมดที่ทำในอิตาลี
คอลเลกชันเป็นอิสระจากแนวโน้มของช่วงเวลาที่จะไปออกแบบการใช้ทำงานได้อย่างหมดจดตามรูปแบบที่เป็นแรงบันดาลใจทั้งและแสดงให้เห็นวิธีการใหม่ในการตกแต่งห้องพักของเรา
คอลเลกชัน PLUST ไม่ได้เป็นเพียงผลิตภัณฑ์ แต่ยังมีระบบของการบริการสำหรับลูกค้าที่สิ้นสุดและนักออกแบบตกแต่งภายในที่มีโอกาสที่จะทำงานร่วมกันอย่างใดอย่างหนึ่งกับตัวเลขส่วนตัวเล็ก ๆเป็นบนอุปกรณ์สัญญาขนาดใหญ่
การออกแบบเก้าอี้ฟัซซี่โดย Eddy Antonello
โต๊ะสตูล / กาแฟที่มีรูปร่างอ่อนหลากหลายและปรับให้เข้ากับบริบทที่แตกต่างของการใช้ คู่ด้วยตัวถัง "หม้อเมา" (โปรดดูที่ส่วนของPOTS) ช่วยให้คุณสามารถสร้างองค์ประกอบที่ผ่านโซลูชั่นอย่างหนึ่ง compositional จำนวนมากและสีและพลิกด้านจะกลายเป็นพืชที่เก็บใจกว้างของขนาดกลางหรือวัตถุในชีวิตประจำวัน
Sunlounge ลูกบอลถูกออกแบบโดย Alberto Brogliato
นี้เป็นเลานจ์ดวงอาทิตย์ที่จะใช้ในสวนหรือในพื้นที่ที่อุทิศตนเพื่อการผ่อนคลายเช่นสระว่ายน้ำ, สปา, รีสอร์ทหรือน้ำพุร้อน ความชอบของกลับอนุญาตให้ท่าที่ถูกต้องและสะดวกสบาย Sunlounge เสร็จสมบูรณ์ในครอบครัวของ "ลูกบอล" อุปกรณ์ตกแต่ง
โต๊ะ Armillaria
โต๊ะในการจับคู่กับเอทิลีน "เก้าอี้ Armillaria" จับคู่กับวัสดุด้านบนและ Finishings ที่แตกต่างกันมันต้องใช้เวลาในรูปแบบใหม่และความหมาย
เก้าอี้ที่เรียบง่ายออกแบบโดย JoeVelluto (jVLT),Eddy Antonello
เก้าอี้ที่ใช้เทคนิค rotomoulding วางซ้อนกันได้, แข็งแรง, เหมาะสำหรับการใช้งานกลางแจ้ง: เป็นลักษณะของเก้าอี้ โดยเรียบง่ายชัดเจนพอดีในพื้นที่ในครอบครัวหรือสาธารณะ
Gumball ออกแบบเก้าอี้โดย Alberto Brogliato
เก้าอี้ที่มีรูปร่างสรีระโดยเฉพาะอย่างยิ่งเหมาะสำหรับการพักผ่อนหย่อนใจ ที่มีจำหน่ายในหลายรุ่น อาจจะผลิตในวัสดุเคลือบแข็งหรือในรุ่นที่มีแสง (โปรดดูที่ส่วนของไฟ) หรือด้วยเรซินนุ่มพิเศษฉบับพิเศษ ที่เต็มไปด้วยหลายพันของลูกบอลสีที่มาผ่านพื้นผิวโปร่งแสง
เรียบเรียงข้อมูล @ ฟรีแปลน
มองหาแนวคิดสำหรับบ้านของคุณ และการสำรองข้อมูลในเว็บไซต์ของฉัน Looking for ideas for your home. And data backup in My website.
วันศุกร์ที่ 4 มกราคม พ.ศ. 2556
โรงนาเก่าและเปลี่ยนให้มันเข้าไปในบ้านที่แสนสบาย
พบเมื่อ casatreschic.blogspot.ro, บ้านแทนโครงการที่น่าตื่นตาตื่นใจที่ผสมสไตล์ที่แตกต่างจากบ้านและ Ampurdán Provence ในเจโรนา ใกล้ชายแดนของฝรั่งเศส คู่รักจากบาร์เซโลนาซื้อโรงนาเก่าและเปลี่ยนให้มันเข้าไปในบ้านที่แสนสบาย ในขณะที่คุณสามารถสังเกตได้จากภาพด้านล่าง สัมผัสธรรมชาติที่อุดมสมบูรณ์ในพื้นที่ใช้สอยเปิด ใช้ประโยชน์จากขนาดของห้องพักที่มีขนาดใหญ่อยู่ในโรงนา ในห้องน้ำลอยอ่างขนาดใหญ่ในใจกลางของห้องพัก.
การทำงานร่วมสมัยในติดตั้งเพื่อให้รูปลักษณ์ที่ทันสมัยและธีมที่น้อย รูปแบบที่ทันสมัยและเรียบง่ายเติมเต็มซึ่งกันและกันอย่างสวยงาม ผนังจะแต่งกายในสนยากที่จะแก้ไข และมีเตาผิงรวบรวมทุกคนในครอบครัวด้วยกัน ในห้องทานอาหารพวกเขาเลือกที่โต๊ะง่ายๆ และเก้าอี้ไม้ตัวเอง เพื่อที่จะสร้างความสัมพันธ์กับสภาพแวดล้อม และโคมไฟระย้าที่กำหนดเอง พวกเขาเป็นคนสมัยใหม่ ที่ได้จบลงด้วยการที่อาศัยอยู่ในโครงสร้างเก่า.
คานไม้ที่รองรับภายในมาจากโรงนาโครง 150 ปี
พืชไม้่ลื้อยสูงขนาดใหญ่ให้ระเบียงอากาศ forestlike.
เรียบเรียงข้อมูล @ ฟรีแปลน
การทำงานร่วมสมัยในติดตั้งเพื่อให้รูปลักษณ์ที่ทันสมัยและธีมที่น้อย รูปแบบที่ทันสมัยและเรียบง่ายเติมเต็มซึ่งกันและกันอย่างสวยงาม ผนังจะแต่งกายในสนยากที่จะแก้ไข และมีเตาผิงรวบรวมทุกคนในครอบครัวด้วยกัน ในห้องทานอาหารพวกเขาเลือกที่โต๊ะง่ายๆ และเก้าอี้ไม้ตัวเอง เพื่อที่จะสร้างความสัมพันธ์กับสภาพแวดล้อม และโคมไฟระย้าที่กำหนดเอง พวกเขาเป็นคนสมัยใหม่ ที่ได้จบลงด้วยการที่อาศัยอยู่ในโครงสร้างเก่า.
คานไม้ที่รองรับภายในมาจากโรงนาโครง 150 ปี
พืชไม้่ลื้อยสูงขนาดใหญ่ให้ระเบียงอากาศ forestlike.
เรียบเรียงข้อมูล @ ฟรีแปลน
T-Shirt Pouf รีไซเคิลและหมอนที่ร่วมสมัย
คุณสามารถทำอะไรกับ T-shirts เก่าหลังการใช้งาน? คุณสามารถโยนพวกเขาทิ้งหรือทำให้ผ้าขี้ริ้ว แต่คุณยังสามารถใช้พวกเขาเพื่อสร้างคอลเลกชันที่ไม่ซ้ำกันของ poufs and pillows ในขณะที่คุณสามารถสังเกตได้จากภาพด้านล่างการออกแบบจะมีข้อจำกัด ที่ไม่เมื่อมันมาถึงความคิดสร้างสรรค์ นอกจากนี้พวกเขาดูแลเกี่ยวกับสิ่งแวดล้อม และการเริ่มรีไซเคิลเกือบทุกอย่าง ... เหมือนคู่ของนักออกแบบ (สามีชาวดัตช์ และภรรยาชาวไทย) ที่ทำให้คอลเลกชันออร์แกนิก poufs and pillows ใช้อีกกรณืผ้าฝ้ายเสื้อยืดนี้.
ถ้าคุณต้องการที่จะลองที่บ้านเก็บไว้ในใจต่อไปนี้: beanbags และหมอนขนาดใหญ่อื่น ๆ มักจะมีถุงด้านในซึ่งมีวัสดุบรรจุถุงแล้วนอกที่ถอดออกได้ ซึ่งทำจากผ้าที่มีคุณภาพซึ่งจะสามารถมองเห็นได้ ประเภทของการกรอกคุณสามารถใช้สำหรับ beanbags และหมอนขนาดใหญ่รวมถึง ถั่วสไตรีน, ถั่วแท้, เศษผ้า, โฟม (หั่น) และถ้าคุณรู้สึกคุณยังสามารถรีไซเคิลเสื้อกันหนาวเก่าหรือถาดอาหารสไตรีน.
และบวกกับที่ใหญ่ที่สุดคือคุณสามารถให้จินตนาการของคุณไปป่า และสร้างรูปร่างและขนาดของที่นั่งที่คุณต้องการ และแน่นอนคุณสามารถใช้ผ้าตรงกับการตกแต่งของคุณในปัจจุบัน!
Poufs and pillows ... เรามีความคิดเสมอว่าพวกเขาเป็นพันธมิตรที่ดีที่สุด และที่นอนของความสะดวกสบาย หมอนสามารถโยงไกลกลับเป็นเมโสโปเตเมีย (อิรักวันนี้) และอียิปต์โบราณ.
เราเชื่อว่าทั้งสองเทคนิคเดิม ๆและการตีความใหม่ของประเพณีเก่านำความงามและความอบอุ่นนับไม่ถ้วนเข้าไปในบ้าน
ชนิดของที่นั่งพื้นยังเหมาะสำหรับผู้ที่ไม่ได้มีห้องหรือเงินพิเศษ สำหรับเฟอร์นิเจอร์ที่สำคัญ - ยกตัวอย่างเช่น beanbags เหมาะอย่างยิ่งสำหรับนักเรียนมุ่งหน้าอ่านหนังสือที่จะเขาวิทยาลัยหรือมหาวิทยาลัย
ที่มาที่เต็มไปและมันก็เป็นที่แข็งแรงมาก!
เรียบเรียงข้อมูล @ ฟรีแปลน
ถ้าคุณต้องการที่จะลองที่บ้านเก็บไว้ในใจต่อไปนี้: beanbags และหมอนขนาดใหญ่อื่น ๆ มักจะมีถุงด้านในซึ่งมีวัสดุบรรจุถุงแล้วนอกที่ถอดออกได้ ซึ่งทำจากผ้าที่มีคุณภาพซึ่งจะสามารถมองเห็นได้ ประเภทของการกรอกคุณสามารถใช้สำหรับ beanbags และหมอนขนาดใหญ่รวมถึง ถั่วสไตรีน, ถั่วแท้, เศษผ้า, โฟม (หั่น) และถ้าคุณรู้สึกคุณยังสามารถรีไซเคิลเสื้อกันหนาวเก่าหรือถาดอาหารสไตรีน.
และบวกกับที่ใหญ่ที่สุดคือคุณสามารถให้จินตนาการของคุณไปป่า และสร้างรูปร่างและขนาดของที่นั่งที่คุณต้องการ และแน่นอนคุณสามารถใช้ผ้าตรงกับการตกแต่งของคุณในปัจจุบัน!
Poufs and pillows ... เรามีความคิดเสมอว่าพวกเขาเป็นพันธมิตรที่ดีที่สุด และที่นอนของความสะดวกสบาย หมอนสามารถโยงไกลกลับเป็นเมโสโปเตเมีย (อิรักวันนี้) และอียิปต์โบราณ.
เราเชื่อว่าทั้งสองเทคนิคเดิม ๆและการตีความใหม่ของประเพณีเก่านำความงามและความอบอุ่นนับไม่ถ้วนเข้าไปในบ้าน
ชนิดของที่นั่งพื้นยังเหมาะสำหรับผู้ที่ไม่ได้มีห้องหรือเงินพิเศษ สำหรับเฟอร์นิเจอร์ที่สำคัญ - ยกตัวอย่างเช่น beanbags เหมาะอย่างยิ่งสำหรับนักเรียนมุ่งหน้าอ่านหนังสือที่จะเขาวิทยาลัยหรือมหาวิทยาลัย
ที่มาที่เต็มไปและมันก็เป็นที่แข็งแรงมาก!
เรียบเรียงข้อมูล @ ฟรีแปลน
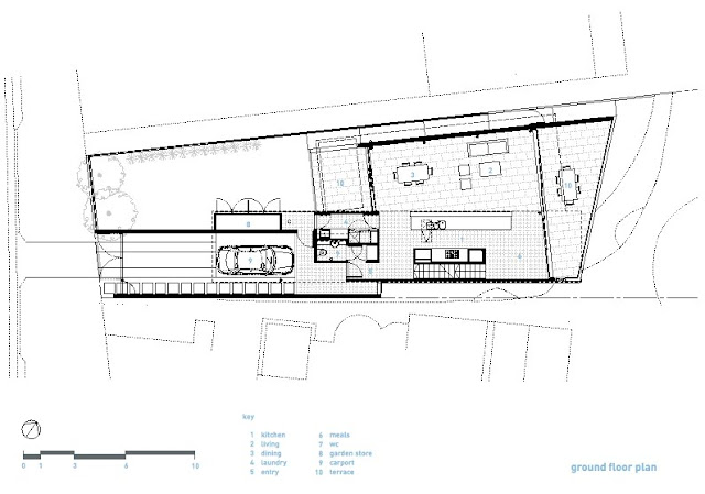
บ้านร่วมสมัย 2 ชั้น ความเป็นส่วนตัวการระบายอากาศ และทัศนียภาพที่งดงาม
บ้านใหม่ที่สร้างขึ้นภายในสถานในเมืองแน่น อยู่บนขอบของหน้าผา 100 เมตร เหนือมหาสมุทรบล็อกรูปมีลักษณะทิศตะวันตกเฉียงใต้ เนื่องจากมีอาคารที่อยู่ใกล้เคียงอย่างใกล้ชิด เพื่อเขตแดนด้านตะวันออกตะวันตก.
ผนังครีบขนาดใหญ่แบ่งหน้าที่แยกของประตูทางเข้า และการไหลเวียนออกจากพื้นที่ๆอาศัยอยู่ และสวนให้การสนับสนุนความเป็นส่วนตัว และโครงสร้างเหล็กสำหรับปีกห้องนอนชั้นบน.
พื้นที่อยู่อาศัยหลักของบ้านถูกออกแบบมาเพื่อเชื่อมโยงพื้นที่สวนกับมหาสมุทร และการใช้ประโยชน์จากรูปทรงเรขาคณิตของบล็อก ซึ่งกว้างไปที่ขอบหน้าผา 'ตำแหน่งระมัดระวังของโครงสร้างผนังกระจกในระดับสูง และรูปแบบหลังคาได้สร้างห้องนั่งเล่นกว้างขวางพร้อมความสมบูรณ์ของแสงธรรมชาติ การระบายอากาศความเป็นส่วนตัว และทัศนียภาพที่งดงาม.
บ้านได้รับการออกแบบให้มีประสิทธิภาพ ความร้อนผ่านการใช้พื้นคอนกรีตและผนังก่ออิฐที่ระดับพื้นดิน เพื่อให้มวลความร้อน hydronic ทำความร้อนใต้พื้นถูกนำมาใช้ทั่วพื้นที่ๆอาศัยอยู่ เพื่อให้ความอบอุ่นในฤดูหนาวกระเบื้องปูพื้นสีเข้มในห้องนั่งเล่น ที่ดูดซับความอบอุ่นและลดแสงสะท้อนจากมหาสมุทรในตอนเช้า louvres ระดับสูงและพัดลมเพดานจะใช้ในการเปิดรับแสงธรรมชาติ และการระบายอากาศในห้องพักทุกห้อง.
ขนาดใหญ่ของชั้นย่อยถังน้ำฝนที่มีความจุรวมกว่า 5000 ลิตร ซึ่งจัดหาน้ำที่ใช้ในการล้างห้องน้ำ การรดน้ำสวน และซักเสื้อผ้า บ้านและสวนเป็นเรื่องง่ายที่จะอาศัยอยู่ใน และดำเนินการมากทางเศรษฐกิจในแง่ของประสิทธิภาพการใช้พลังงานและการพัฒนาอย่างยั่งยืน บ้านหลังนี้ให้เจ้าของที่มีช่องว่างที่ผ่อนคลายและสวยงามในการที่จะมีชีวิตอยู่ความบันเทิง และชื่นชมธรรมชาติของโลก.
เรียบเรียงข้อมูล @ ฟรีแปลน
Architects: Utz Sanby Architects – Duncan Sanby, Ray Fung
Location: Queenscliff, Australia
Engineer: James Taylor and Associates
Interior design: Utz Sanby Architects
Project area: 210 sqm
Project year: 2006 – 2010
Photographs: Marian Riabic
ผนังครีบขนาดใหญ่แบ่งหน้าที่แยกของประตูทางเข้า และการไหลเวียนออกจากพื้นที่ๆอาศัยอยู่ และสวนให้การสนับสนุนความเป็นส่วนตัว และโครงสร้างเหล็กสำหรับปีกห้องนอนชั้นบน.
พื้นที่อยู่อาศัยหลักของบ้านถูกออกแบบมาเพื่อเชื่อมโยงพื้นที่สวนกับมหาสมุทร และการใช้ประโยชน์จากรูปทรงเรขาคณิตของบล็อก ซึ่งกว้างไปที่ขอบหน้าผา 'ตำแหน่งระมัดระวังของโครงสร้างผนังกระจกในระดับสูง และรูปแบบหลังคาได้สร้างห้องนั่งเล่นกว้างขวางพร้อมความสมบูรณ์ของแสงธรรมชาติ การระบายอากาศความเป็นส่วนตัว และทัศนียภาพที่งดงาม.
บ้านได้รับการออกแบบให้มีประสิทธิภาพ ความร้อนผ่านการใช้พื้นคอนกรีตและผนังก่ออิฐที่ระดับพื้นดิน เพื่อให้มวลความร้อน hydronic ทำความร้อนใต้พื้นถูกนำมาใช้ทั่วพื้นที่ๆอาศัยอยู่ เพื่อให้ความอบอุ่นในฤดูหนาวกระเบื้องปูพื้นสีเข้มในห้องนั่งเล่น ที่ดูดซับความอบอุ่นและลดแสงสะท้อนจากมหาสมุทรในตอนเช้า louvres ระดับสูงและพัดลมเพดานจะใช้ในการเปิดรับแสงธรรมชาติ และการระบายอากาศในห้องพักทุกห้อง.
ขนาดใหญ่ของชั้นย่อยถังน้ำฝนที่มีความจุรวมกว่า 5000 ลิตร ซึ่งจัดหาน้ำที่ใช้ในการล้างห้องน้ำ การรดน้ำสวน และซักเสื้อผ้า บ้านและสวนเป็นเรื่องง่ายที่จะอาศัยอยู่ใน และดำเนินการมากทางเศรษฐกิจในแง่ของประสิทธิภาพการใช้พลังงานและการพัฒนาอย่างยั่งยืน บ้านหลังนี้ให้เจ้าของที่มีช่องว่างที่ผ่อนคลายและสวยงามในการที่จะมีชีวิตอยู่ความบันเทิง และชื่นชมธรรมชาติของโลก.
เรียบเรียงข้อมูล @ ฟรีแปลน
Architects: Utz Sanby Architects – Duncan Sanby, Ray Fung
Location: Queenscliff, Australia
Engineer: James Taylor and Associates
Interior design: Utz Sanby Architects
Project area: 210 sqm
Project year: 2006 – 2010
Photographs: Marian Riabic
ร้านกาแฟที่ดีที่สุดในปารีส Coutume Café 47 Rue De Babylone
Coutume เป็น roastery กาแฟใหม่ในปารีสให้เลือกขอบตัดต้นกำเนิดของกาแฟคั่วบริสุทธิ์.
CUT architectures ได้ออกแบบ Coutume café ครั้งแรกในใจกลางกรุงปารีสการรวม roastery และคาเฟ่ให้บริการกาแฟที่ดีที่สุดในปารีส และคัดเลือกประณีตของอาหารสดและอาหารออแกนิก.
ด้วยจิตวิญญาณแห่งกาแฟชนิดพิเศษผู้เชี่ยวชาญที่ให้โอกาส Coutume ที่จะค้นพบกาแฟวัฒนธรรมด้วยเครื่องมือไฮเอนด์.
ผนังและเพดานนำกลับภายในแบบฉบับกรุงปารีสทั่วไป ที่มีเพดานสูง, moldings, เสาและประตูร้านเก่า พื้นไม้โอ๊คใหม่เพิ่มขึ้นเพื่อบรรยากาศแบบปารีส.
CUT architectures กำหนดในการตกแต่งห้องปฏิบัติการนี้ของกาแฟ ใช้กระเบื้องสีขาวตาราง เส้นตารางแสง, สแตนเลส, ผ้าม่าน, พลาสติกอุตสาหกรรม, laboratory glassware.
โต๊ะไม้โอ๊คธรรมดาถูกออกแบบมาสำหรับ Coutume เป็นฟิวชั่นของการตกแต่งภายในกรุงปารีสและห้องทดลองนี้
การออกแบบ Coutume Café ได้รับการคัดเลือกตาม wih ดี Koolhaas le Dauphin และ Patrick Bouchain ของ La Grenouillere โดยนักวิจารณ์ร้านอาหารของ lefooding.com
เรียบเรียงข้อมูล @ ฟรีแปลน
Interior Designer: CUT Architectures
Location: Paris, France
Collaborators: Benjamin Clarens & Yann Martin architects
Project area: 90 sqm
Project year: 2011
Photographs: David Foessel
CUT architectures ได้ออกแบบ Coutume café ครั้งแรกในใจกลางกรุงปารีสการรวม roastery และคาเฟ่ให้บริการกาแฟที่ดีที่สุดในปารีส และคัดเลือกประณีตของอาหารสดและอาหารออแกนิก.
ด้วยจิตวิญญาณแห่งกาแฟชนิดพิเศษผู้เชี่ยวชาญที่ให้โอกาส Coutume ที่จะค้นพบกาแฟวัฒนธรรมด้วยเครื่องมือไฮเอนด์.
การผสมผสานของประเพณีเล่นแร่แปรธาตุและเทคนิคการออกแบบแรงบันดาลใจ CUT architectures.
ผนังและเพดานนำกลับภายในแบบฉบับกรุงปารีสทั่วไป ที่มีเพดานสูง, moldings, เสาและประตูร้านเก่า พื้นไม้โอ๊คใหม่เพิ่มขึ้นเพื่อบรรยากาศแบบปารีส.
CUT architectures กำหนดในการตกแต่งห้องปฏิบัติการนี้ของกาแฟ ใช้กระเบื้องสีขาวตาราง เส้นตารางแสง, สแตนเลส, ผ้าม่าน, พลาสติกอุตสาหกรรม, laboratory glassware.
โต๊ะไม้โอ๊คธรรมดาถูกออกแบบมาสำหรับ Coutume เป็นฟิวชั่นของการตกแต่งภายในกรุงปารีสและห้องทดลองนี้
การออกแบบ Coutume Café ได้รับการคัดเลือกตาม wih ดี Koolhaas le Dauphin และ Patrick Bouchain ของ La Grenouillere โดยนักวิจารณ์ร้านอาหารของ lefooding.com
เรียบเรียงข้อมูล @ ฟรีแปลน
Interior Designer: CUT Architectures
Location: Paris, France
Collaborators: Benjamin Clarens & Yann Martin architects
Project area: 90 sqm
Project year: 2011
Photographs: David Foessel
สมัครสมาชิก:
ความคิดเห็น (Atom)





































































