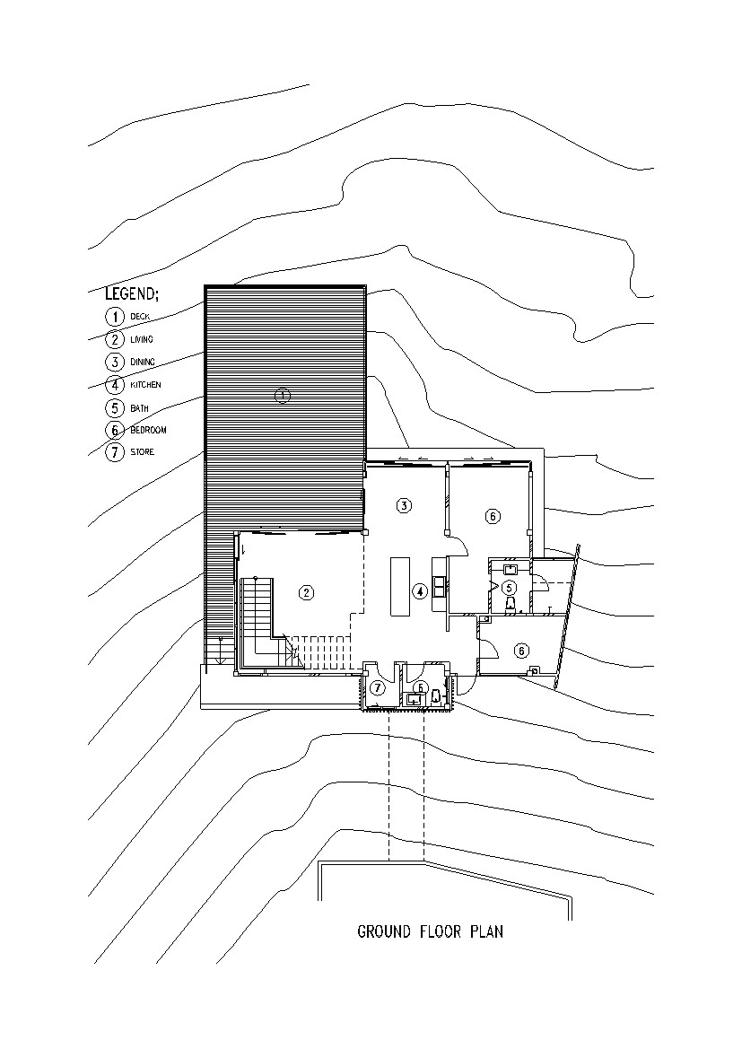
The Deck House เป็นบ้าน 2-1/2 ชั้น ตั้งอยู่ท่ามกลางต้นไม้เขียวขจีของ Janda Baik ป่าที่เชิงเขาของเก็นติ้งไฮแลนด์ บ้านหลังนี้ประกอบด้วย 3 ห้องนอน 3 ห้องน้ำ ที่มีประมาณ 370 m2 ของพื้นที่ปิดล้อมและภายนอกอาคาร.
ไซต์ภูมิประเทศที่ลาดลงมาจากถนนสาธารณะที่อยู่ติดกันจากพื้นดินที่สูงขึ้น จากลูกค้าคือการออกแบบที่เรียบง่ายและอ่อนโยน ทันสมัยที่กำลังมองหาบ้าน รายละเอียดและส่วนหนึ่งของบ้านนี้ล้อมรอบภูมิประเทศที่มีสัญญาณรบกวนต่ำสุดของความลาดชันที่มีอยู่ แม้จะมีการก่อสร้างเหล็กและกระจกของฟังก์ชั่นบ้าน เหมือนบ้านเขตร้อนแบบดั้งเดิมที่มีความสูงเพดานสูง สว่าง พื้นที่ภายในและการระบายอากาศเพียงพอกับหน้าต่างบนผนังมากที่สุด และบานเกล็ดอลูมิเนียมส่วนที่สูงที่สุดของอาคารสำหรับอากาศร้อน.
มากที่สุดของอาคารถูกออกแบบด้วยเหล็กและกระจก ทำให้เกิดความสว่าง รากฐานและตอไม้ของอาคารที่ทำจากคอนกรีตเสริมเหล็กธรรมดาครอบคลุมการใช้กระจกเป็นผิวโดยรอบ ช่วยให้ผู้อยู่อาศัยเพลิดเพลินไปกับมุมมองของป่าโดยรอบ.
ที่อาศัยอยู่ใน Janda Baik กับสภาพภูมิอากาศในระดับค่อนข้างปานกลาง ช่วยให้ผู้อยู่อาศัยเพลิดเพลินไปกับกิจกรรมกลางแจ้ง และในทางปฏิบัติที่มีอากาศบริสุทธิ์ตลอดทั้งวัน ดังนั้นพื้นที่กลางแจ้งที่กว้างขวางเช่นจากดาดฟ้ากับการใช้ชีวิต และการรับประทานอาหาร และระเบียงห้องนอนมาสเตอร์ ส่วนรูปแบบที่สำคัญของการออกแบบอาคาร.
หากต้องการเข้าไปในบ้านจากที่จอดรถ / ถนน, จะต้องข้ามสะพานเหล็กและไม้ เมื่อเข้ามาในบ้านที่มีห้องโถงทางเข้าขนาดเล็กที่อยู่กับประตูห้องนอนด้านขวาเล็กน้อย ภูมิใจนำเสนอห้องนอนใหญ่กว้าง 6.8 เมตร ประตูกระจกเลื่อนที่เปิดไปยังระเบียงภายนอกใจกว้าง.
เรียบเรียงข้อมูล @ ฟรีแปลน
Architects: Choo Gim Wah Architect
Location: Pahang, Malaysia
Architect: Choo Gim Wah
Area: 370 sqm
Year: 2012
Photographs: Kenneth Lim






























ไม่มีความคิดเห็น:
แสดงความคิดเห็น