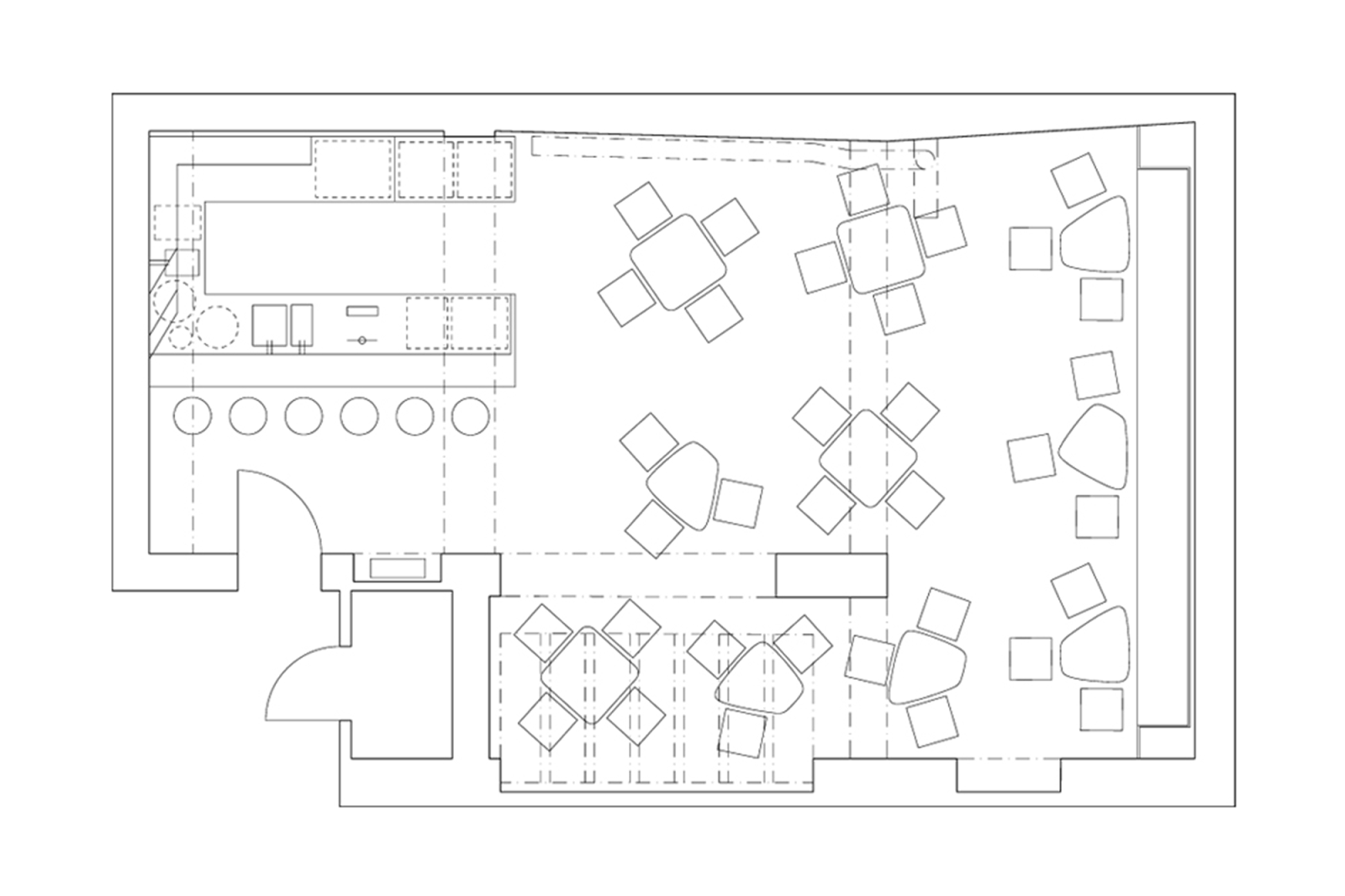
พื้นที่ของคาเฟ่ - บาร์ ตั้งอยู่ในอาคารเพิ่มเติมที่ด้านหลังของทาวน์เฮ้าส์ ซึ่งจากปี 90s ถึงศตวรรษที่ 20 ฟื้นฟูได้รับการทำความสะอาดออกจากชั้นอายุเก่าของ "design" และบรรยากาศของพื้นที่โดยการลบส่วนโค้งตกแต่งเดิม อาคารเพิ่มเติมทั้งหมดดังนั้นแหล่งเดียวของเวลากลางวันเป็นสกายไลท์เดิม.
จากจุดเริ่มต้นของนักลงทุนยืนยันที่จะรักษาชื่อเดิม "Fountain Bar" แต่มีการเปลี่ยนแปลงในระหว่างการทำงาน ชื่อที่นี่ทำหน้าที่เป็นแหล่งที่มาของแรงบันดาลใจกับแนวคิดของพื้นที่วาทกรรม น้ำพุ - น้ำพุร้อน - ระดับน้ำทำให้เกิดแบบไดนามิกเปลี่ยนรูปร่างและสี เรื่องราวความแปรปรวนของแสงไฟกะพริบสีและแสงสะท้อนนี้ จะถูกจารึกไว้ในการตกแต่งภายในโดยรูปแบบของคลื่นโครงสร้างของเส้นใยสีที่เปลี่ยนแปลงไปเบาๆ พื้นที่ทั้งหมดจะเบี่ยง monochromatically ว่าผลของมันจะเน้นมากที่สุด ที่สำคัญคือพื้นผิวของแสง -พื้นผิว, ความคมชัดที่ดีระหว่างเคลือบและพื้นผิวมันวาว.
เรียบเรียงข้อมูล @ ฟรีแปลน
Architects: Next Level Studio
Location: Uherske Hradiste, Czech Republic
Architect In Charge: Michal Kutalek
Area: 70 sqm
Year: 2012
Photographs: Martin Kocich
Cooperation: Viktor Johanis
Furniture Manufacturer: Pavel Prasek
Chairs And Tables: Wiesner-Hager
Lighting: Muller Light, Amon cs
Flooring: Profimat
Aquarium: Pavlica akvaria
Cost: € 70,000

















ไม่มีความคิดเห็น:
แสดงความคิดเห็น