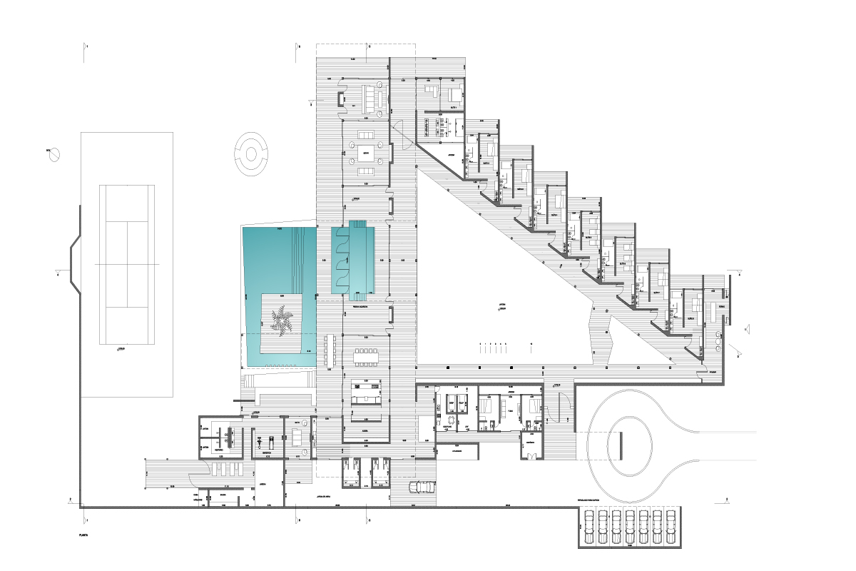
ความหรูหราและความอุดมสมบูรณ์เป็นคำพูดที่เหมาะสมในการอธิบายถึงบ้านหลังนี้ใน Nova Lima, 22 กิโลเมตรจาก Belo Horizonte เมืองหลวงของ Minas Gerais, บราซิล โครงการนี้ได้รับการพัฒนาโดย S+A Brazil, ภายใต้การนำของสถาปนิก Marcelo Montoro, และในความร่วมมือกับ Piantina Architecture, รับผิดชอบสำหรับโครงการออกแบบตกแต่งภายใน บ้านจะแบ่งออกเป็นสี่ช่วงที่แตกต่างกันที่เชื่อมต่อกันผ่านวัสดุเหล็กพิเศษเคลือบ ด้วยกระจกสะท้อนแสง.
ในช่วงกลางวางสวนขนาดใหญ่และสระว่ายน้ำ บล็อก 1 จะแบ่งออกเป็น 8 ห้องสวีทสตูดิโอและห้องน้ำที่บล็อก 2 พื้นที่ทางสังคมประกอบด้วยห้องชมภาพยนตร์ในบ้าน และสระว่ายน้ำว่ายน้ำอุ่น บล็อก 3 ประกอบด้วยห้องครัว, สปาและพื้นที่เล่น 4 บล็อก สงวนไว้สำหรับพนักงานที่บ้านรวมทั้งที่อยู่อาศัยที่เป็นอิสระ ด้านนอกมีสระว่ายน้ำสนามเทนนิสและสนามเด็กเล่น ผนังด้านนอกจะทำด้วยมือด้วยหินในท้องถิ่น (Canga de Minérios) สีแดงรุนแรงที่คูณภายใต้แสงแดด.
เรียบเรียงข้อมูล @ ฟรีแปลน
Architects: S+A Brazil
Location: Nova Lima, Minas Gerais, Brazil
Interior Design: Piantina Architecture
Area: 4,000 sqm
Year: 2011
Photographs: Rafael Carrieri


















ไม่มีความคิดเห็น:
แสดงความคิดเห็น