33rd Street House เป็นโครงการที่อยู่อาศัยเสร็จสมบูรณ์โดย Meridian 105 Architecture. มันตั้งอยู่ในเดนเวอร์, โคโลราโด และเสร็จในปี 2013.
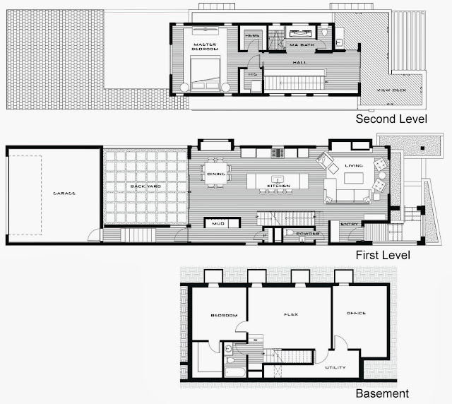
ตั้งอยู่บนพื้นที่แคบ 28 ' ทั้งในพื้นที่ใกล้เคียงที่ Denver’s LoHi , บ้าน 33 อเวนิว ในขณะที่เมืองที่มีคุณภาพของบล็อกเป็นที่น่าพอใจกับเจ้าของบ้าน ที่มีการจราจรเท้าและพาหนะจำนวนมาก ของการเปลี่ยนมุมของสถานที่ให้บริการ necessited การแก้ปัญหาความคิดสร้างสรรค์ในการรักษาภายใน และบ้านความเป็นส่วนตัว ดังนั้นชั้น 1 ทั้งหมดของบ้านสูงขึ้นไปเกือบ 6 ' เหนือทางเท้า เพื่อรักษาเชื่อมต่อกับภายนอก, บ้านหลังที่ถูกสร้างขึ้นถึงระดับเดียวกัน โซลูชั่นนี้ยังทำให้การใช้งานของวัสดุที่ขุดห้องใต้ดินประหยัดค่าใช้จ่ายในการกำจัดนอกสถานที่.
ชั้นหลักของบ้านมีห้องครัว, ห้องรับประทานอาหาร และการใช้ชีวิตในพื้นที่ ในขณะที่ชั้นบนเป็นชุดมาสเตอร์ที่มีการเข้าถึงดาดฟ้าภายนอก มีมุมมองที่เส้นขอบฟ้าของเมืองไปทางทิศใต้ของบ้าน ที่ถูกขยับไปทางด้านหลังเพื่อสร้างดาดฟ้า มันเป็นหลังคาแหลมตอบสนองต่อความต้องการของเมืองโซนสำหรับระนาบจำนวนมาก และสูงพอดีกับการที่มีบริบทพื้นที่ใกล้เคียงโดยรอบ 2 ห้องนอนเพิ่มเติมอยู่ในระดับที่ต่ำลงจมลงบางส่วน.
เรียบเรียงข้อมูล @ ฟรีแปลน
Photos by: Raul J. Garcia












ไม่มีความคิดเห็น:
แสดงความคิดเห็น