Crone Partners สำนักงานเมลเบิร์นได้รับการออกแบบ Residence ที่ดีใน Sandringham, ชานเมืองเมลเบิร์นในวิกตอเรียออสเตรเลีย
โครงการสำรวจความคิดของการบรรลุกระจก 2 ชั้นสูงที่ทันสมัย ภายในบ้านชานเมืองที่นำเสนอที่อยู่อาศัย ในตัวเลือกของการควบคุมสภาพแวดล้อมอย่างอดทน ชีวิตของพวกเขาในขณะที่เรียกร้องการทำงานสั้น ๆ ดูเหมือนขั้นต้นจะท้าทายเป็นอย่างยิ่ง
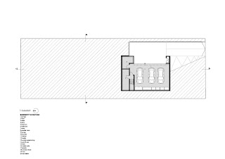
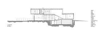
บ้าน 2 ชั้น เป็นที่เข้ารอบสุดท้ายในบ้าน 2011 รางวัลสำหรับบ้านใหม่ประเภทมากกว่า 200 ตารางเมตร.
The Good Residence by Crone Partners:
"Embracing ความท้าทายของสถานที่ชานเมืองค่อนข้างแน่น ภายในและผิวอาคารที่เข้มงวด นักออกแบบทำงานอย่างใกล้ชิดกับลูกค้าของพวกเขาให้เหตุผล" รายการต้องการ "ในช่วงสั้น ๆ กระชับและส่งมอบ. เล็ก ๆ น้อย ๆ ในขั้นตอนนี้ แม้แต่น้อยในการแปล ไปที่บ้านเสร็จสำหรับสร้าง / ลูกค้าและครอบครัวหนุ่มสาว
บ้านที่มีรายละเอียดประณีตรูปแบบเป็นเส้นตรงตัวหนาตั้งกลับจากถนน ท่ามกลางพรมคลุมดินตามธรรมชาติ. เข้าลงด้านข้างของบ้านจะทำผ่านเส้นทางที่ลึกซึ้ง ที่เกิดขึ้นจากเดิมไม้หมอนรถไฟฝังลงไปในดิน. ขณะนั่งสบายในบริบทสัดส่วน และมีความพ่ายแพ้ของคุณสมบัติเคารพเพื่อนบ้าน มุมมองจากถนนยืนยันได้ทันทีว่าบ้านหลังนี้ค่อนข้างแตกต่าง ให้คนรอบข้าง
โครงการตระหนักผ่านชุดตัดและทับรูปแบบสี่เหลี่ยม. แต่ละกล่อง หมายถึงส่วนที่แตกต่างกันของโปรแกรมโดยรวม. โซนนอน / การศึกษาเขตที่อยู่อาศัย, อู่รถ / workshop, และแพร่งข้างต้นทั้งหมดนี้สมบูรณ์แบบด้วยพื้นที่ใช้สอยของตัวเองและระเบียงกลางแจ้งที่เงียบสงบ
รูปแบบของอาคารที่ได้รับการอย่างระมัดระวัง ขณะที่ทั้ง 2 อุปกรณ์ตรวจเพื่อความเป็นส่วนตัวและองค์ประกอบที่กรอบและกำหนดมุมมอง. ผิวภายนอกที่แข็งแกร่งที่มีการเปลี่ยนแปลงอย่างมีนัยสำคัญในลักษณะอากาศที่แตกต่างและสภาพแสง ให้วิธีการตกแต่งภายในอบอุ่นและเป็นมิตรที่เต็มไปด้วย แสงธรรมชาติ เพดานสูงจะเกิดช่องว่างสูงและวัสดุสัมผัส. ครอบคลุมการใช้งานและการจัดวางฉลาดของกระจกที่มีประสิทธิภาพสูงดึงแสงเข้ามาในห้องทุก. เส้นแบ่งระหว่างภายในและภายนอกจะเบลอกับของ louvres operable และใหญ่เลื่อนการติดตั้งกระจกที่นำเสนอ ครอบครัวที่มีความสามารถในการมีส่วนร่วมโดยตรงกับสภาพแวดล้อมภายนอก หรือสถานที่ๆจะปิดลงอย่างสมบูรณ์ขึ้นอยู่กับสภาพภูมิอากาศในเมลเบิร์นเป็นตัวแปร
ในขณะที่ไม่เปิดเผย "green" ในลักษณะการออกแบบบ้านเป็นไปตามหลักการ ESD เสียง ในท้ายที่สุดการออกแบบเป็นเรื่องเกี่ยวกับการควบคุมการส่ง ครอบครองผ่านโซลูชันที่มีการโต้ตอบสูง การออกแบบและพัฒนาเรื่อย ๆ และตัวเลือกที่พวกเขาให้มีผลในบ้านเล็ก ๆ น้อย ๆ ที่อาศัย ที่ใช้งานและระบบทำความร้อนที่ได้รับการติดตั้ง นักออกแบบจงใจผลักสำรวจของพวกเขาในรูปแบบโครงการ และความงามในขณะที่ยังคงรักษาระดับสูงสุดของการพัฒนาอย่างยั่งยืน ความคิดริเริ่มที่จัดตั้งขึ้นในการออกแบบรวมถึง:
+ ประสิทธิภาพสูงกระจกสี 2 ชั้น
+ แข็ง façade ตะวันตกฉนวนหนักด้วยการเปิด จำกัด
+ เพิ่มมวลความร้อนภายใน เพื่อลดความผันผวนของอุณหภูมิในเวลากลางวัน
+ ระดับ 1 กล่อง ให้แรเงาจากดวงอาทิตย์ขึ้น เหนือไปพื้นที่ใช้สอยหลัก
+ เย็น passive ผ่านการระบายอากาศตามธรรมชาติข้าม - สถานที่ทั้งหมดจะเปิดขึ้นด้วยการรวมกันของขนาดใหญ่เลื่อนการติดตั้งกระจกและเคลือบ louvres
+ façade ผิว คู่ไปทางทิศตะวันออกสัมผัสชั้น 1 ให้ทั้งความเป็นส่วนตัวและการควบคุมภาพร้อนที่ดีเยี่ยม ผิวนอกที่ถูกสร้างขึ้นทั้งหมดของ louvres กระจกทึบแสง
+ น้ำฝน 20,000 ลิตร ถังเก็บต่ำกว่าพื้นดิน เพื่อนำมาใช้ในห้องน้ำและล้าง
+ เข้าถึงพลังงานแสงอาทิตย์ เพื่อสระว่ายน้ำได้รับการคุณลักษณะ maximized โดยจัดอาคารใกล้เคียงเป็นไปได้ที่จะเขตแดนทางตะวันตกเฉียงใต้
+ หลังคาติดตั้งเครื่องทำความร้อน แสงอาทิตย์สำหรับสระว่ายน้ำ
+ เครื่องทำความร้อนใต้พื้นแผ่น ลงไปชั้นล่าง
บ้านที่มีการจัดเป็นที่ว่างเปล่ายังที่แทรกรายละเอียดของครอบครัวชีวิตของพวกเขาไม่เคยเปลี่ยน มันมีความยืดหยุ่นสำหรับการเจริญเติบโต และการเปลี่ยนแปลงที่มีช่องว่างที่สามารถเปิดขึ้น และเชื่อมต่อหรือปิดตัวลงสำหรับการใช้งานมีข้อจำกัดมาก และใกล้ชิดโซนที่อยู่อาศัยหลักที่ถูกสร้างขึ้น เพื่อให้บริการลูกค้าตามความต้องการ เฉพาะสำหรับพื้นที่ทางการสื่อสารที่เหมาะสำหรับนักเดินทางแปรปรวนของวันของพวกเขา เพื่อชีวิตวัน มันไหลได้อย่างง่ายดายจากพื้นที่ทำงานหนึ่งไปยังอีก และสามารถเปิดขึ้นมาเพื่อพื้นที่กลางแจ้งที่อยู่ติดกัน โดยเฉพาะอย่างยิ่งสนามหลังบ้านทางเหนือและ orientated สระว่ายน้ำ. "
Photos by: Derek Swalwell
Source: Contemporist
เรียบเรียงข้อมูล @ ฟรีแปลน
มองหาแนวคิดสำหรับบ้านของคุณ และการสำรองข้อมูลในเว็บไซต์ของฉัน Looking for ideas for your home. And data backup in My website.
วันศุกร์ที่ 30 พฤศจิกายน พ.ศ. 2555
บ้านตู้คอนเทนเนอร์ 2 ชั้น ประกอบภายในไม่กี่วันและง่ายต่อการเคลื่อนย้าย และเป็นมิตรกับสิ่งแวดล้อม
Jure Kotnik ได้รับการออกแบบนี้ บ้าน 2 ชั้น 300 ตารางฟุตตู้คอนเทนเนอร์สำหรับลูกค้าคนหนึ่งของเขาที่ตั้งอยู่ใน Trebnje, สโลวีเนีย มีบางอย่างที่มีประโยชน์อย่างใหญ่กับชนิดของการก่อสร้างนี้คือ: ต้นทุนต่ำมากราคาเมื่อเทียบกับสร้างบ้านแบบดั้งเดิม ประกอบภายในไม่กี่วันและง่ายต่อการเคลื่อนย้าย และเป็นมิตรกับสิ่งแวดล้อมเป็นต้น
แทนการใช้การขนส่งตู้คอนเทนเนอร์รีไซเคิล Jure Kotnik ใช้ภาชนะที่ออกแบบเป็นพิเศษเพื่อที่อยู่อาศัย ตอนนี้ปัญหาใหญ่ที่คุณจะต้องพร้อมที่จะอาศัยอยู่ในบ้านดังกล่าว?
Week End House 2+ by Jure Kotnik Architect:
"ราคาสูงของอสังหาริมทรัพย์ในโลกร่วมสมัย ได้กระตุ้นการค้นหาและการพัฒนาที่อยู่อาศัยของการแก้ปัญหา ทางเลือกหนึ่งในความพยายามดังกล่าว เป็นระบบ ConHouse ขนาดเล็กจากที่อยู่อาศัยตู้คอนเทนเนอร์ที่ใช้ที่อยู่อาศัย / สำนักงาน ISO เพื่อวิวัฒนาการต่อไปในระดับ เมื่อเทียบกับโครงการตู้คอนเทนเนอร์อื่น ๆ ซึ่งส่วนใหญ่มีส่วนเกินของตู้สินค้าที่มีอยู่ ConHouse ดันการพัฒนาของตู้คอนเทนเนอร์ที่ผลิต โดยเฉพาะอย่างยิ่งเพื่อวัตถุประสงค์ที่อยู่อาศัยและสำนักงาน
แม้ว่าที่ผ่านมา 20 ปีที่มีการเปลี่ยนแปลงอย่างมีนัยสำคัญ หน้าตาของสถาปัตยกรรมในรูปแบบพื้นฐานของตู้คอนเทนเนอร์เหล่านี้ ที่มีอยู่เดิม ระบบ ConHouse ตอนนี้ พวกเขาอัพเกรดเพื่อให้มีคุณภาพชีวิตที่เทียบเคียงกับที่อยู่อาศัยคลาสสิก นี่คือความสำเร็จส่วนใหญ่ผ่านการออกแบบอย่างมีเหตุผล พื้นวัสดุที่เลือกอย่างระมัดระวัง ภายในที่มีแสงสว่างเพียงพอและลักษณะภายนอกที่กำหนดเองของแต่ละหน่วย ด้วยการทำให้ผู้โดยสารที่จะ coshape หน่วยสารประกอบของพวกเขาตามความต้องการเฉพาะของพวกเขา, ConHouse ใช้เวลาหลังจากอุตสาหกรรมยานยนต์ ประดิษฐ์ที่เจ้าของรถสามารถเลือกส่วนประกอบที่พวกเขาต้องการ และหลังจากที่ชนะสูตร IKEA พัฒนาของการออกแบบภายใน
2 + เป็น 2 ระดับหน่วยที่อยู่อาศัยขนาดเล็กประกอบด้วย 2 แนวตั้งฉากกับภาชนะอื่น ๆ มันแสดงให้เห็นว่าจำนวนที่น้อยที่สุดของตู้คอนเทนเนอร์รวมกัน ในแฟชั่นนวัตกรรมนำเสนอโซลูชั่นสถาปัตยกรรมสดยังทำงาน ภาชนะบนหลังคาให้ยื่นเหนือประตูทางเข้า เช่นเดียวกับการทำหน้าที่ในการพักพิงระเบียงกลับ เพดานด้านล่างของภาชนะนี้ยังมีระเบียงชั้นแรก
façade สีชมพูแสดงให้เห็นถึงความหลากหลายของความเป็นไปได้ สำหรับความอ่อนหวานตัดทางเลือกของที่เป็นง่ายๆเป็นที่จะตัดสินใจ ซึ่งจะใส่ modular ธรรมชาติของระบบที่จะช่วยให้ตู้คอนเทนเนอร์ที่จะเพิ่มหรือลบออกจากสารประกอบที่จำเป็น เพื่อให้ ConHouse สามารถเติบโตหรือหดตัวตามความต้องการเชิงพื้นที่จริงของคนที่ใช้มัน ราคาที่ต่ำกว่าของหน่วยชีวิต / การทำงานดังกล่าว ทำให้พวกเขาสามารถแข่งขันเมื่อเทียบกับที่อยู่อาศัยแบบดั้งเดิม และมีจุดมุ่งหมายที่จะเพิ่มจำนวนของเจ้าของบ้านที่จะสามารถใช้เงินเพิ่มเพื่อขยายพื้นที่นั่งเล่นของพวกเขา หรือลงทุนมากยิ่งขึ้นในการออกแบบตกแต่งภายใน. "
Photos courtesy of Jure Kotnik
แทนการใช้การขนส่งตู้คอนเทนเนอร์รีไซเคิล Jure Kotnik ใช้ภาชนะที่ออกแบบเป็นพิเศษเพื่อที่อยู่อาศัย ตอนนี้ปัญหาใหญ่ที่คุณจะต้องพร้อมที่จะอาศัยอยู่ในบ้านดังกล่าว?
Week End House 2+ by Jure Kotnik Architect:
"ราคาสูงของอสังหาริมทรัพย์ในโลกร่วมสมัย ได้กระตุ้นการค้นหาและการพัฒนาที่อยู่อาศัยของการแก้ปัญหา ทางเลือกหนึ่งในความพยายามดังกล่าว เป็นระบบ ConHouse ขนาดเล็กจากที่อยู่อาศัยตู้คอนเทนเนอร์ที่ใช้ที่อยู่อาศัย / สำนักงาน ISO เพื่อวิวัฒนาการต่อไปในระดับ เมื่อเทียบกับโครงการตู้คอนเทนเนอร์อื่น ๆ ซึ่งส่วนใหญ่มีส่วนเกินของตู้สินค้าที่มีอยู่ ConHouse ดันการพัฒนาของตู้คอนเทนเนอร์ที่ผลิต โดยเฉพาะอย่างยิ่งเพื่อวัตถุประสงค์ที่อยู่อาศัยและสำนักงาน
แม้ว่าที่ผ่านมา 20 ปีที่มีการเปลี่ยนแปลงอย่างมีนัยสำคัญ หน้าตาของสถาปัตยกรรมในรูปแบบพื้นฐานของตู้คอนเทนเนอร์เหล่านี้ ที่มีอยู่เดิม ระบบ ConHouse ตอนนี้ พวกเขาอัพเกรดเพื่อให้มีคุณภาพชีวิตที่เทียบเคียงกับที่อยู่อาศัยคลาสสิก นี่คือความสำเร็จส่วนใหญ่ผ่านการออกแบบอย่างมีเหตุผล พื้นวัสดุที่เลือกอย่างระมัดระวัง ภายในที่มีแสงสว่างเพียงพอและลักษณะภายนอกที่กำหนดเองของแต่ละหน่วย ด้วยการทำให้ผู้โดยสารที่จะ coshape หน่วยสารประกอบของพวกเขาตามความต้องการเฉพาะของพวกเขา, ConHouse ใช้เวลาหลังจากอุตสาหกรรมยานยนต์ ประดิษฐ์ที่เจ้าของรถสามารถเลือกส่วนประกอบที่พวกเขาต้องการ และหลังจากที่ชนะสูตร IKEA พัฒนาของการออกแบบภายใน
2 + เป็น 2 ระดับหน่วยที่อยู่อาศัยขนาดเล็กประกอบด้วย 2 แนวตั้งฉากกับภาชนะอื่น ๆ มันแสดงให้เห็นว่าจำนวนที่น้อยที่สุดของตู้คอนเทนเนอร์รวมกัน ในแฟชั่นนวัตกรรมนำเสนอโซลูชั่นสถาปัตยกรรมสดยังทำงาน ภาชนะบนหลังคาให้ยื่นเหนือประตูทางเข้า เช่นเดียวกับการทำหน้าที่ในการพักพิงระเบียงกลับ เพดานด้านล่างของภาชนะนี้ยังมีระเบียงชั้นแรก
façade สีชมพูแสดงให้เห็นถึงความหลากหลายของความเป็นไปได้ สำหรับความอ่อนหวานตัดทางเลือกของที่เป็นง่ายๆเป็นที่จะตัดสินใจ ซึ่งจะใส่ modular ธรรมชาติของระบบที่จะช่วยให้ตู้คอนเทนเนอร์ที่จะเพิ่มหรือลบออกจากสารประกอบที่จำเป็น เพื่อให้ ConHouse สามารถเติบโตหรือหดตัวตามความต้องการเชิงพื้นที่จริงของคนที่ใช้มัน ราคาที่ต่ำกว่าของหน่วยชีวิต / การทำงานดังกล่าว ทำให้พวกเขาสามารถแข่งขันเมื่อเทียบกับที่อยู่อาศัยแบบดั้งเดิม และมีจุดมุ่งหมายที่จะเพิ่มจำนวนของเจ้าของบ้านที่จะสามารถใช้เงินเพิ่มเพื่อขยายพื้นที่นั่งเล่นของพวกเขา หรือลงทุนมากยิ่งขึ้นในการออกแบบตกแต่งภายใน. "
Photos courtesy of Jure Kotnik
การออกแบบอพาร์ตเมนต์พื้นที่ขนาดเล็ก ความใส่ใจเป็นพิเศษกับความต้องการเพิ่มขึ้น
ภาพนี้ภายในออกแบบโดย บริษัทโปแลนด์ Pressenter Design, แสดงให้เห็นความท้าทายของการตกแต่ง 40 ตารางเมตร (430 ตารางฟุต) เรียบด้วยการใช้ความตั้งใจของแม่ที่มีลูกสาว 6 ปี บ้านได้รับการออกแบบด้วยความใส่ใจเป็นพิเศษกับความต้องการเพิ่มขึ้น ของเด็กที่มากจุดเริ่มต้นชีวิตในโรงเรียนของพวกเขาที่จะต้องเป็นสถานที่ๆสะดวกสบายในการศึกษา ในขณะที่ยังจำได้ว่าแม่ของเธอจะต้องมีพื้นที่ส่วนพักผ่อนในการที่จะผ่อนคลายหลังจากวันที่วุ่นวายจากการทำงาน.
เพราะขนาดพอประมาณของรูปแบบนี้พื้นที่การศึกษาได้รับการตั้งอยู่ริมด้านหนึ่งของห้องนั่งเล่น พร้อมด้วยตู้เก็บไฟล์ที่จะปกปิดหนังสือและอุปกรณ์โต๊ะยาวเป็นพิเศษ ได้รับการติดตั้งเพื่อให้ทั้งสมาชิกในครอบครัวที่จะใช้พื้นที่ทำงานที่ใดเวลาหนึ่ง
ตู้เก็บต่ำมีเดียวางอยู่ไม่รุกล้ำพื้นที่ๆมีสัดส่วนมันเงาของตน และการจับคู่ต่ำสะพายหัวข้อโต๊ะกาแฟสีไม้ที่อุดมไปด้วยผ่านศูนย์กลางของของห้องพัก
ในห้องครัวไม้สีขาวและเรื่องสีเข้มยังคงอยู่ในหน่วยงานและ worktops โต๊ะรับประทานอาหารขนาดเล็กช่วยให้อาหารออกจากพื้นที่ใช้สอยเพื่อความรวดเร็วทำความสะอาด
ชั้นวางหนังสือที่ปรับแต่งได้ เพื่อช่วยให้คุณมีอิสระในการทำสิ่งต่าง ๆ
ในขณะที่การกำหนดขอบเขตออกโซลูชั่นการเก็บเข้าลิ้นชักบางส่วนสนุกที่นี่ช่วง ANITA โดย Ricard Mollon popped up และสะกดออก 'hello'! เหล่านี้ คริลิค thermoformed letterforms สามารถช่วยให้คุณพูดค่อนข้างเกี่ยวกับอักษรของบ้านคุณ; ใช้ได้ในขนาดยืนพื้นหรือรุ่นเล็ก สำหรับผนังของคุณแต่ละตัวอักษรจะขายเป็นรายบุคคล เพื่อช่วยให้คุณมีอิสระในการทำสิ่งต่าง ๆ ในคำพูดของคุณเอง
มีจำหน่ายที่ Quattria, เหล่านี้ beauties พิมพ์ยืนอยู่ในแนวโน้มที่มีจำนวนมากของเรา ในขณะนี้แสดงคำหลักตกแต่งเช่น 'Love' และ 'Home' ในบ้านเรือนของเรา และการเกิดขึ้นของช่วงที่ยอดเยี่ยมเหมือนการจัดเก็บตามตัวอักษรตาม Set26, เก้าอี้ และ Tabisso โคมไฟ และ Fontable โต๊ะจดหมาย 2D
เราไม่แน่ใจว่าวิธีการเหล่านี้รูปแบบคูลจะมีลักษณะโปร่งใส ถ้าคุณเก็บหนังสือของคุณทั้งหมดลงในพวกเขา แต่เป็นคุณลักษณะการออกแบบที่พวกเขาจะน่ารักน่าชัง เก๋ไก๋; naturel สูงและการแบ่งห้องเป็น หรือชื่นชมเป็นชิ้นงบเศษฟรี .ตัวละครใน 3 มิติ ยังสามารถทำงานเป็นอย่างแปลกประหลาดโต๊ะข้างเตียงของคุณ เริ่มต้นใช้ในการเรียกร้องด้านของเตียงหรือในห้องดูทีวีที่อยู่ถัดจากที่นั่งที่ดีที่สุดในบ้าน!
พิจารณาการจัดกลุ่มกรอบรูปที่ 'ครอบครัว' คำคอลเลกชันของที่ระลึกที่ย้อนยุค 'ของเล่น' หรือคุณลักษณะประติมากรรมที่ 'ART' เป็นไปได้ที่ไม่มีที่สิ้นสุด! จริงๆเราต้องสะกดออกสำหรับคุณหรือไม่
มีจำหน่ายที่ Quattria, เหล่านี้ beauties พิมพ์ยืนอยู่ในแนวโน้มที่มีจำนวนมากของเรา ในขณะนี้แสดงคำหลักตกแต่งเช่น 'Love' และ 'Home' ในบ้านเรือนของเรา และการเกิดขึ้นของช่วงที่ยอดเยี่ยมเหมือนการจัดเก็บตามตัวอักษรตาม Set26, เก้าอี้ และ Tabisso โคมไฟ และ Fontable โต๊ะจดหมาย 2D
เราไม่แน่ใจว่าวิธีการเหล่านี้รูปแบบคูลจะมีลักษณะโปร่งใส ถ้าคุณเก็บหนังสือของคุณทั้งหมดลงในพวกเขา แต่เป็นคุณลักษณะการออกแบบที่พวกเขาจะน่ารักน่าชัง เก๋ไก๋; naturel สูงและการแบ่งห้องเป็น หรือชื่นชมเป็นชิ้นงบเศษฟรี .ตัวละครใน 3 มิติ ยังสามารถทำงานเป็นอย่างแปลกประหลาดโต๊ะข้างเตียงของคุณ เริ่มต้นใช้ในการเรียกร้องด้านของเตียงหรือในห้องดูทีวีที่อยู่ถัดจากที่นั่งที่ดีที่สุดในบ้าน!
พิจารณาการจัดกลุ่มกรอบรูปที่ 'ครอบครัว' คำคอลเลกชันของที่ระลึกที่ย้อนยุค 'ของเล่น' หรือคุณลักษณะประติมากรรมที่ 'ART' เป็นไปได้ที่ไม่มีที่สิ้นสุด! จริงๆเราต้องสะกดออกสำหรับคุณหรือไม่
บ้านต้นไม้ที่เย็นสบาย การตกแต่งภายในที่เรียบง่ายด้วยการสัมผัสของความสง่างาม
วันนี้บ้านต้นไม้ที่เย็นสบายตั้งอยู่บนต้นไม้ที่อยู่ใกล้เมเปิลแม่น้ำฮัดสันในนิวยอร์ก ที่ออกแบบโดย German-based Baumraum. ห่างไกลจากบ้านต้นไม้ของเด็กที่อยู่อาศัยนี้ ให้การตกแต่งภายในที่เรียบง่ายด้วยการสัมผัสของความสง่างาม สร้างสำหรับครอบครัวที่มีเด็กสองคน, บ้านต้นไม้ทำหน้าที่เป็นทางออกสำหรับการผ่อนคลาย และเชื่อมต่อไปยังที่พำนักหลักของพวกเขาผ่านทางแคตวอล์ไม้เรียวยาว
ในขณะที่ที่อยู่อาศัยมีลักษณะที่จะถูกระงับในอากาศจะเกาะอยู่บนยอดจริงผนังของหินและจากนั้นขยายไปที่หน้าผา
ต้นโอ๊กแบกน้ำหนักของระเบียงที่มีสายงานหนักและเชือกเหล็ก บ้านต้นไม้เป็น propped up โดยสองสนับสนุนเอียงด้านหน้าและสองไม้ค้ำถ่อเล็กใกล้หิน
ในช่วงเย็นที่ห้องไฟส่องสว่างยอดไม้
As seen on Tiny House Design. Photo credit Baumraum.
ในขณะที่ที่อยู่อาศัยมีลักษณะที่จะถูกระงับในอากาศจะเกาะอยู่บนยอดจริงผนังของหินและจากนั้นขยายไปที่หน้าผา
ต้นโอ๊กแบกน้ำหนักของระเบียงที่มีสายงานหนักและเชือกเหล็ก บ้านต้นไม้เป็น propped up โดยสองสนับสนุนเอียงด้านหน้าและสองไม้ค้ำถ่อเล็กใกล้หิน
ในช่วงเย็นที่ห้องไฟส่องสว่างยอดไม้
As seen on Tiny House Design. Photo credit Baumraum.
สมัครสมาชิก:
ความคิดเห็น (Atom)






















































