โปรตุเกสสถาปนิก Bernardo Rodrigues ได้ส่งภาพถ่ายของ House on the Flight of Birds, โครงการเสร็จในปี 2010 ที่อยู่อาศัยของครอบครัวเดี่ยวนี้ตั้งอยู่ใน Ribeira Grande ในเขตเทศบาลใน Soa Miguel เกาะอะซอเรส, โปรตุเกส.
House on the Flight of Birds Bernardo Rodrigues:
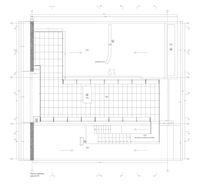
"บ้านตั้งอยู่ในด้านทิศเหนือของเกาะเอสไมเคิลใน Azores สภาพภูมิอากาศระดับจุลภาคเกษตรนี้มีลมบ่อย ดังนั้นกลยุทธ์ในการออกแบบเป็นครั้งแรกที่จะปิดกั้นด้วยผนังลม ที่นำเสนอมีความหลากหลายและประดับประดาลานปกคลุมบนพื้น ป้องกันจากฝนและเปิดทุกพื้นที่ใช้สอยสีเขียวธรรมชาติ โดยรอบ ผนังกระจก receded จากภายนอก
บนพื้นด้านบนมีห้องพักส่วนตัวมากกว่าปิดล้อม และการป้องกัน typology ดังนี้คลาสสิกเกือบทุก Palladian และ scamozzi การออกแบบแผนส่วนกลางที่มีความสูง 2 ครั้งที่ห้องนั่งเล่น และแล้ว 2 ปีกด้านข้างล้อมรอบหนึ่งในห้องครัวยัง quotes ปล่องไฟสูงจากสถาปัตยกรรมที่อยู่อาศัยที่นิยม และลานภายในครอบคลุม ปีกอื่น ๆ ที่มีการไหลเวียนสำหรับชั้นแรกและชั้นที่หลังคา
ทั้ง 2 ปลายปีกทางทิศใต้แสงจากหลังคามีเป็นไปได้ของการบินของทัศนียภาพทั้งหมดฝั่งเกาะเหนือ. "
Photos by: Iwan Baan


























ไม่มีความคิดเห็น:
แสดงความคิดเห็น