บ้านร่วมสมัยโดย LEVEL Architects ตั้งอยู่ในโตเกียว, ชิบูยา, Sendagaya, ญี่ปุ่น เป็นโครงการที่ 2011 องค์ประกอบที่ไม่ธรรมดา เช่นในพื้นที่ในร่มสำหรับ Skate สวนสาธารณะ และพื้นที่การแสดงดนตรี.
Skate Park House by LEVEL Architects:
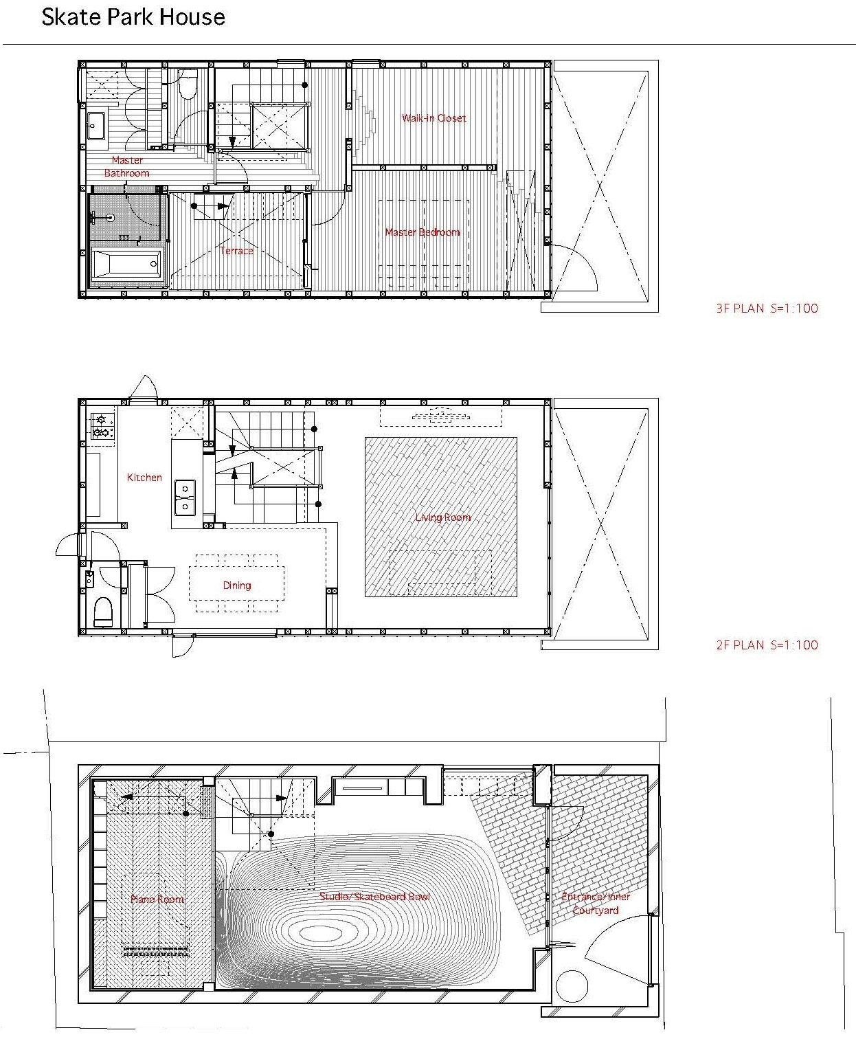
เจ้าของบ้านหลังนี้ทั้งคู่แต่งงานกันหนุ่มด้วยคำขอพิเศษ ในการไปถึงการออกแบบของบ้านของพวกเขา ตั้งอยู่ในย่านที่อยู่อาศัยอันเงียบสงบในชิวอร์ด พวกเขาต้องการทั้งสวน สเกตบอร์ด และห้องซ้อมเปียโน เพื่อสะท้อนให้เห็นถึงความสนใจของตนเอง
ไม่จำเป็นต้องมีสำหรับที่จอดรถในไซต์ ไม่ได้เพื่อที่จะใช้ประโยชน์จากพื้นที่ลานทางเข้าส่วนตัว ได้รับการออกแบบ เลื่อนการติดตั้งกระจกจากชั้นแรกเปิดขึ้นบนพื้นที่ๆปิดล้อมนี้ และช่วยให้การประชุมเชิงปฏิบัติการและสตูดิโอที่จะขยายออก
สตูดิโอมีลานสเกตบอร์ด imbedded ในชั้นที่มีมุมหลายมากมายของการมีปฏิสัมพันธ์ที่แตกต่างกัน
ห้องพักเปียโนตั้งอยู่ที่ด้านหลังของสตูดิโอ ถูกยกขึ้นประมาณ 2 ฟุตจากพื้นดิน เพื่อช่วยให้มีการพิสูจน์แบบเสียงของห้องพัก เช่นเดียวกับการสร้างพื้นที่เวทีโดยธรรมชาติประสิทธิภาพ
เมื่อประตูเปิดขึ้นไปบนห้องสตูดิโอพื้นที่ขยายกลายเป็นที่นั่งพัก และสมบูรณ์การเปลี่ยนแปลงบรรยากาศจากห้องซ้อมเพียงเพื่อคอนเสิร์ต
ห้องนั่งเล่นหลักและพื้นที่รับประทานอาหารที่ใช้แนวคิดที่คล้ายกันของการเปลี่ยนแปลงระดับครึ่งทั้งโปรแกรมที่แยกต่างหากและรวมทั่วชั้น 2
ความแตกต่างเพดานสูงและความแตกต่างของวัสดุที่เน้นและสร้างขอบเขตสำหรับห้องพัก รูปแบบของการเชื่อมต่อพื้นที่ทั่วบ้านทั้งอีกประการ คือจะมีแสงจะนำเสนอที่อยู่อาศัยตลอด
เพื่อให้บรรลุนี้การติดตั้งไฟฟ้าขนาดใหญ่ ที่ถูกติดตั้งลงในเพดานของบันไดท่วมด้วยแสง ซึ่งไม่เพียงแต่การรั่วไหลลงบนทุกระดับที่แตกต่างกัน แต่ถึงทุกทางไปชั้นแรกเช่นกัน
ระดับบนสุดเป็นห้องมาสเตอร์ทุกส่วนตัว เพื่อที่จะสร้างแบ่งจากระดับที่ต่ำกว่าที่ขนาดของวัสดุที่ได้รับการเพิ่มขึ้น ชั้นที่ซ้อนกันหลายพื้นสร้างแบ่งครอบคลุมระหว่างห้องนี้ การเปลี่ยนแปลงอย่างค่อยเป็นค่อยไปจากห้องไปที่ห้องตลอดทั้งชั้น สร้างความรู้สึกที่เปิดกว้างมากขึ้นในระดับห้องสวีท
Materialistically ทั้งพื้นเก่าและใหม่ถูกนำมาใช้ จุดประสงค์คือ ไม่ให้มีวัสดุแต่ละพื้นที่มี แต่จะมีพวกเขากระจายออกมาเขตแดนที่ติดกันที่จะเน้นของพื้นทั้งหมด
ระเบียง, คิดว่าเป็นสวนหย่อมภายใน ไม่ได้มองว่าเป็นพื้นที่การเปลี่ยนแปลง แต่พื้นที่สำหรับหยุดการทำงานชั่วคราว ร่วมกับห้องน้ำหรือห้องนอน มันเป็นพื้นที่เชื่อมต่อจากส่วนที่เหลือส่วนใหญ่ของชุด materialistically โดยไม่ทับซ้อนกัน และมีการออกจากเขตแดนและเพื่อจะถือว่าเป็นจุดพักของชั้นบนสุด. "
Photos by: Kojima Junji






















ไม่มีความคิดเห็น:
แสดงความคิดเห็น