ความคิดริเริ่มของโครงการ C-1 เริ่มต้นจากขั้นตอนการออกแบบ มันถูกออกแบบมาเป็นผลิตภัณฑ์อิสระที่ไม่ซ้ำกันได้อย่างราบรื่นพื้นที่ที่เฟอร์นิเจอร์ตกแต่งภายในสถาปัตยกรรมและผลิตภัณฑ์จะกลายเป็นประสบการณ์ทางอารมณ์ที่ไม่ซ้ำกันแต่ละที่เชื่อมต่ออย่างระมัดระวัง
C-1 ออกแบบให้เหมือนกับภาพยนตร์พร้อมบอร์ดสถานการณ์ และเรื่องราวการออกแบบขั้นพื้นฐานรวมถึงจากจุดเริ่มต้นทุกด้านของโครงการจากรูปร่างของอาคารที่ตำแหน่งสวิทช์ไฟ
การออกแบบขั้นพื้นฐานกำหนดโครงการภารกิจที่แตกต่างที่ควรจะเริ่ม เพื่อให้บรรลุเป้าหมายจากการออกแบบอาคารที่จะแตะการออกแบบ
ดังนั้นไม่เหมือนกระบวนการตามปกติของโครงการ articture ซึ่งเป็นหลักสูตรที่ออกแบบมาจากสถาปัตยกรรม inetrior และผลิตภัณฑ์ในที่สุดการออกแบบทั้งหมดถูกพัฒนาใน parallell
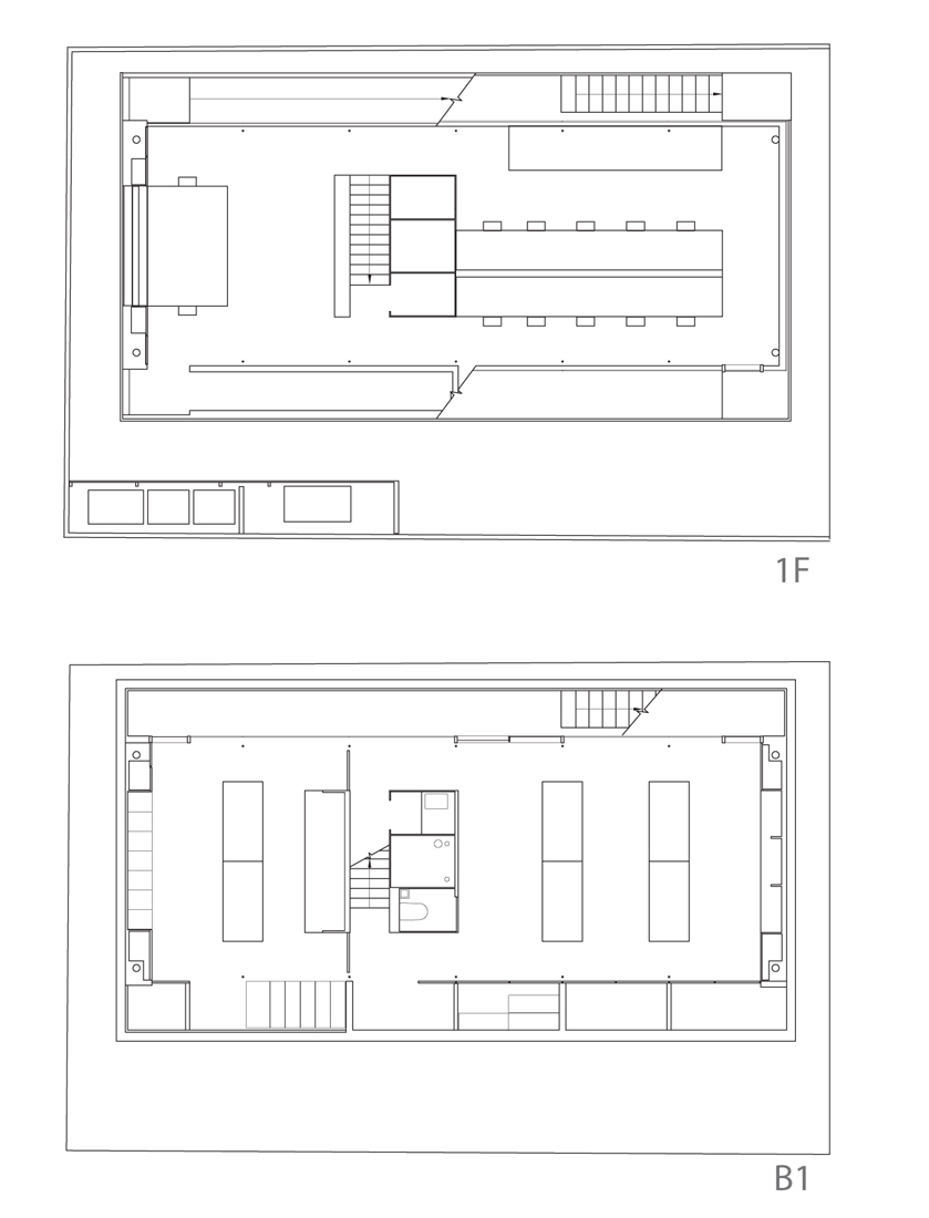
การออกแบบสถาปัตยกรรมพื้นฐานช่องกระจกล้อมรอบด้วยทางเดินแกลเลอรี่ที่เชื่อมต่อพื้นได้รับการออกแบบก่อนที่ดินพบการออกแบบขั้นพื้นฐานถูกกำหนดจากจุดที่ผู้มุมมองของการเคลื่อนไหวและการค้นพบเป็นธีมหลัก การออกแบบที่ไม่ได้กำหนดตามผนังและพื้น แต่โดยการเคลื่อนไหวของผู้ใช้ภายในพื้นที่ที่กำหนดโดยชุดของฉาก วิธีที่ผู้ใช้จะปรากฏขึ้นและหายไปจากพื้นถึงชั้น ตระหนักถึงการเคลื่อนไหวราบรื่นความร่วมมือสถาปัตยกรรม, tomoyuki ustumi เสนอให้ใช้แผ่นเหล็ก 25mm เป็นพื้นและในที่สุดก็มีความหนาที่สุดก็มาถึง 60mm เฉพาะเมื่อเพิ่มวัสดุปูพื้น นี้จะเทียบเท่ากับสายในระดับสถาปัตยกรรม
เป็นทางเดินรอบบ้าน, ภายในควรได้รับการออกแบบในแบบ 3 มิติ, visble จากระดับพื้นถึงเพดานระดับบนสุดของตารางเป็นที่มองเห็นเป็น buttom, การตกแต่งภายใน 3D เสมือนจริง และเป็นความท้าทายที่ยากมาก ใช้ภาพเคลื่อนไหว 3 มิติ ลำดับของการตกแต่งภายในได้ทำการตรวจสอบจากทุกมุม.
เรียบเรียงข้อมูล @ ฟรีแปลน
Architect: Gwenael Nicolas – Curiosity + Tomoyuki Ustumi – Milligram Studio
Location: Tokyo, Japan
Project Year: 2005
Client: Curiosity
Structural Engineering: Mitsuhiro Kanada
Main Contractor: Shin
Site Area: 189 sqm
Constructed Area: 113 sqm
Photographs: Curiosity















ไม่มีความคิดเห็น:
แสดงความคิดเห็น